
Введение
С изменением государственного строя в советское время быт и условия жизни людей сильно изменились, что повлияло на развитие и дизайн мебели. Кухонная мебель в городских квартирах стала современнее, объединяя всё необходимое для приготовления пищи в один гарнитур, хотя обеденная зона чаще оставалась отдельно. Мебель проектировалась с учетом рациональности и функциональности, а оформление кухонь зависело от статуса и дохода семьи.

Чертаново. Новые жилые дома. Фото из архива Института модернизма.
В начале этого периода появились экспериментальные проекты, использовавшие новые формы мебели и отражавшие переход от декоративно-прикладного искусства к дизайну. Например, кухня-ниша, разработанная Барщем и Лисагором в конце 1920-х годов, была вдохновлена «Франкфуртской кухней» Маргарете Шютте-Лихоцки.

«Франкфуртская кухня». Маргарете Шютте-Лихоцки, 1926.

«Кухня-ниша» для жилой ячейки дома-коммуны. Барщ М. О. и Лисагор С. А., 1928–1929.
Хотя большинство таких проектов не стали массовыми из-за неподготовленности экономики и общества, они послужили основой для типовых гарнитуров второй половины ХХ века.
Рост строительства и появление новых технологий способствовали массовому производству стандартной кухонной мебели, а бытовые приборы, хоть и с простым дизайном, начали влиять на её формы.
«Кухня-ниша» для жилой ячейки дома-коммуны. Барщ М. О. и Лисагор С. А., 1928–1929.
В конце 1950-х годов начали появляться «дома нового типа», известные как хрущёвки. Их строительство было направлено на быстрое решение жилищной проблемы и предоставление людям отдельных квартир вместо коммунальных квартир или бараков.
Концепция исследования
Визуальное исследование рассматривает влияние процессов решения квартирного вопроса, обустраивания жилищного быта, реализации градостроительной политики СССР и вследствие формировании «бытовой философии» на дизайн мебели во второй половине 1950-1980-х гг., в особенности на пространство кухни, сердце квартирной ячейки.
Структура исследования
1. Проблемы и особенности дизайна планировки помещений хрущёвок. 2. Эргономика пространства хрущёвки. 3. Мебель в кухнях разного габарита. 4. Кухонная техника. 3. Всесоюзные мебельные выставки в 1956–1968 гг. и их влияние на дизайн мебели. 4. Заключение.
Проблемы и особенности планировки помещений хрущёвок
Район массовой застройки Химки — Ховрино. Москвичи обживают новые квартиры, 1977.
Хрущёвки часто критикуют за маленькую площадь и низкие потолки. Несмотря на скромные размеры квартир, при их проектировании и обустройстве большое внимание уделялось эргономике пространства и удобству для всей семьи.
Коридоры в хрущевках обычно были узкими и тесными, но площадь квартир использовалась максимально эффективно. Основное внимание уделялось комнатам и кухне, а прихожая служила лишь проходом между ними. В таких домах часто делались встроенные шкафы и кладовки.
Фото: музей архитектуры имени Щусева
На кухнях площадью 4-5 м² не было места для полноценного гарнитура, поэтому пришлось разрабатывать компактную и функциональную мебель.
Недостаток площади в хрущёвках компенсировался также и архитектурными приёмами. Например, знаменитое окно между ванной и кухней обеспечивало не только естественное освещение, но и повышало уровень безопасности. Считалось, что в случае взрыва газа ударная волна выбьет только стекло, а не разрушит стену целиком.
Пример различных способов разграничения пространства. «Квартира и ее убранство». О. Г. Баяр, Р. Н. Блашкевич, 1962.
Недостаток площади в хрущёвках компенсировался также и архитектурными приёмами. Частым способом решения проблемы малой жилой площади являлся приём разделения общей площади комнаты на зоны с помощью шкафов-перегородок, складных дверей, встроенных ниш, сквозных этажерок, ширм и штор.
Эргономика пространства хрущёвки
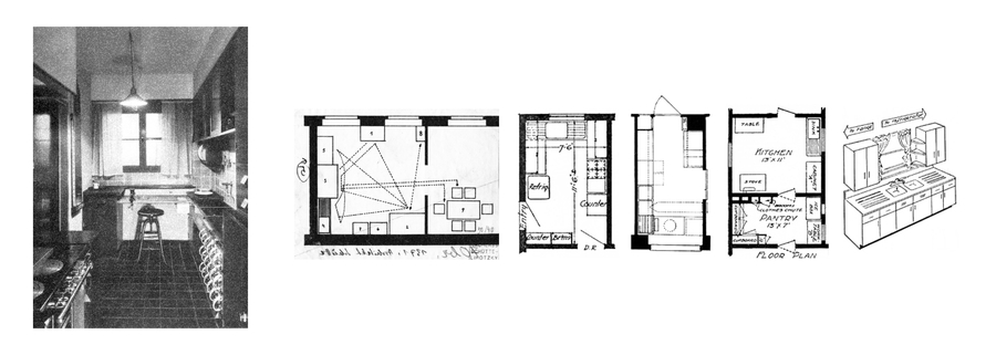
Минимализм стал необходимостью в хрущёвках из-за ограниченного пространства. Задача советских проектировщиков состояла в том, чтобы подсчитать количество и траекторию движений человека во время приготовления пищи. Необходимо было спроектировать удобное и эргономичное кухонное пространство для ежедневного использования одной семьёй.
«Необходимо отобрать у мебели власть над человеком, сделать ее послушной нам». Случевский Ю.В.
Пример использования правил эргономики при проектировании дизайна квартиры. «Квартира и ее убранство». О. Г. Баяр, Р. Н. Блашкевич, 1962.
А. А. Барташевич в статье «Эволюция жилой среды и её связь с мебелью» пишет: «Жилая среда влияет на создание мебели, а цель проектирования мебели — улучшение этой среды. Разработка форм и ассортимента мебели должна учитывать изменения в быту и функциях квартиры, потому что вне квартиры мебель теряет своё значение».
«Никита Хрущев. Голос из прошлого». Дополнительные материалы. Эп. 3.4. Реж. Артём Чащихин-Тоидзе. Диктор: Сергей Чонишвили
Мебель в кухнях разного габарита
Кухни запроектированы были трёх типов:
1. Рабочая/малая кухня (с возможностью установить откидной столик).
Кухня размером 4,5–5 м² обычно используется исключительно для приготовления еды. Ее называют малой или рабочей кухней. Однако иногда в таких помещениях организуют небольшую зону для еды, где могут перекусить отдельные члены семьи. Это делает быт в квартире более удобным и облегчает работу хозяйки. Для этой цели часто используют откидные или складывающиеся столики.
Рабочая кухня. «Квартира и ее убранство». О. Г. Баяр, Р. Н. Блашкевич, 1962.
Пример рабочей кухни со складным столиком.
Пример рабочей кухни.
2. Кухня-столовая.
Кухни площадью 6–7 м² часто оборудуются не только рабочей зоной, но и обеденным столом, где может собираться вся семья. Такие кухни, известные как кухни-столовые, благодаря своей площади подходят также для выполнения других домашних дел, например, шитья, стирки или глажки белья.
В книге Блашкевича «Квартира и ее убранство» отмечается, что кухни-столовые впервые появились в «домах нового типа», позволяя совмещать приготовление пищи с ее приемом. До 1960-х годов такая организация пространства была редкостью.
Кухня-столовая. «Квартира и ее убранство». О. Г. Баяр, Р. Н. Блашкевич, 1962.
Пример кухни-столовой.
Мебель, произведенная в Советском Союзе в 1960-е годы, как можно узнать по маркировкам на нижних частях стульев, царгах кресел и внутренней стороне шкафов, зачастую имела зарубежное происхождение. В квартирах Москвы, Ленинграда и Киева того времени основную часть мебели составляли изделия из стран Восточной Европы, таких как ГДР, Чехословакия, Польша и Румыния. Реже встречались предметы из Венгрии, Югославии и даже Финляндии. Локальная мебель занимала менее четверти всего ассортимента. Таким образом, интерьер советских квартир 60-х годов преимущественно формировался за счет импортной мебели.
Пример кухни-столовой. Хозяйка на кухне в одной из московских квартир. Кухонный буфет, 1961, Польша.
На фотографии изображен кухонный буфет и стол из гарнитура 1961 года сделанного в Польше. Буфет с раздвижными дверцами, элегантными полками, деревянными выдвижными ящиками и маленькими пластмассовыми отделениями изготовлен из дерева. Выглядит добротно и основательно, верхняя часть конструкции сделана съёмной, что придаёт дополнительную практичность и лёгкость в использовании. Выдвижные ящички над столешницей напоминают элементы кухни-ниша, разработанная Барщем и Лисагором, вдохновленной «Франкфуртской кухней» Маргарете Шютте-Лихоцки. Также выделяющимся декоративным элементом являются круглые ручки, повторяющиеся и на выдвижном ящике стола.
Тот же буфет из польского гарнитура 1961 года. Советская актриса, Валентина Теличкина, на кухне, 1969.
3. Кухня-ниша (совмещённая с жилой комнатой или передней и отгороженная шторой или ширмой).
Самым компактным и удобным решением для кухни является кухня-ниша. Для кухонного оборудования отводится небольшой участок площадью 1,5–2,5 м², который обычно располагается либо в жилой комнате, либо в прихожей. Пространство кухни-ниши, включающее электрическую плиту и вытяжной шкаф, отделяется от остальной части помещения с помощью шторы, складной перегородки или занавеса на рейке.
Кухня-ниша. «Квартира и ее убранство». О. Г. Баяр, Р. Н. Блашкевич, 1962.
Кухня-ниша. Интерьер одной из комнат трехкомнатной эталонной квартиры в 10-м экспериментальном квартале. 1 октября 1968 года.
Кухня-ниша. Строительство и архитектура № 6 (1970). Киножурнал № 52646, 1 сюжет. Реж. Л.Галаджева.
Кухня выполняла гораздо больше функций, чем просто приготовление пищи. Эти функции можно разделить на: 1. основные, такие как готовка 2. дополнительные, такие как стирка, глажка.
Кухонное оборудование рекомендовали располагать вдоль одной стены, что позволяло экономить на технических подключениях и использовать вторую стену для холодильника и шкафа. Также оборудование можно было размещать вдоль двух параллельных или смежных стен (угловые кухни). Если площадь кухни была достаточно большой, её можно было сделать в форме буквы П, но отмечалось, что такая кухня предполагает большую семью и много кухонной утвари.
«Квартира и ее убранство». О. Г. Баяр, Р. Н. Блашкевич, 1962.
Устанавливать кухонные шкафы вдоль окна было неудобно, так как высота рабочей поверхности составляла 85 см, а подоконника — 80 см, что мешало открывать окно. Кроме того, под окном обычно размещали холодильник
Минимальный набор для кухни включал плиту (чаще газовую с 2 или 4 конфорками, реже с 3), мойку с одной чашей (две чаши считались слишком громоздкими), рабочий стол-шкаф и шкафы для хранения продуктов и утвари.
Из дополнительного — при наличии места можно было закрепить на одну из стен складывающуюся гладильную доску, а также приспособление для сушки белья.
«Квартира и ее убранство». О. Г. Баяр, Р. Н. Блашкевич, 1962.
«Квартира и ее убранство». О. Г. Баяр, Р. Н. Блашкевич, 1962.
В квартирах хрущёвках часто использовались различные складные предметы мебели для экономии места и удобства использования. Например, складные столы, диваны-кровати, столы-книжки, шкафы-стенки.
Разборные обеденные столы. Ежемесячник «Новые товары». 1958.
Обеденные столы начали оснащать ящиками для столовых приборов, что позволило сэкономить место в кухонном гарнитуре. Стулья были максимально простыми, со спинками из реек, что создавало ощущение легкости и не загромождало пространство. Модульные стенки, ставшие символом того времени, позволяли собрать набор мебели по своему вкусу и адаптировать его к интерьеру квартиры. В таких гарнитурах находилось место для посуды, вещей, телевизора, книг и любых других предметов по желанию.
Складная мебель позволяла максимально эффективно использовать пространство, сохраняя при этом функциональность и удобство.
Кухонная техника
Первые газовые плиты Дружковского завода /Заметка про «Ленгазаппарат»
С начала 1950-х годов в СССР активно проводилась газификация и строилось новое жильё, что привело к широкому использованию газовых плит. Системы газоснабжения позволили устанавливать их не только в городах, но и в деревнях и на дачах. Массовое производство плит началось в 1958 году с появлением магистральных газопроводов. Одним из первых такие плиты начал выпускать ленинградский завод «Ленгазаппарат», производя модели с двумя и четырьмя конфорками.
Газовая плита. Ленинградский завод газовой аппаратуры, 1960-е
В 1958 году завод «Брестгазоаппарат» (г. Брест) выпустил первую партию газовых плит. К концу декабря 1961 года, перед Новым годом, была изготовлена юбилейная 100-тысячная плита. Завод производил недорогие, но качественные плиты, доступные для большинства людей.
Выставка плит Брестского завода «Газоаппарат».
Стандартная плита того времени имела стальную решётку, задний щиток и четыре вертикальные горелки. В дверцу духовки начали встраивать стекло, позволяющее наблюдать за выпечкой без потери тепла. Некоторые модели оснащались подсветкой духовки, установленной за жаропрочным стеклом. Также производились трёхконфорочные плиты со встроенным шкафом для 27-литрового баллона СУГ.
В конце 1959 года администрацией Лысьвенского металлургического завода было выбрано направление по производству 2-х и 4-х горелочных газовых плит. В 1960 году начался их массовый выпуск под маркой «Лысьва».
Пример трёхконфорочных плит. Лысьвенский металлургический завод (ЛМЗ). Производство бытовых газовых, электрических плит «Лысьва»
Важным улучшением газовых плит того времени стало покрытие корпусных деталей и противней эмалью. Этот материал, популярный и сегодня, оказался очень удобным: в отличие от металла или чугуна, эмаль легко очищается от грязи, что особенно важно на кухне.


Газовая плита «Брест 1457-01».
В конце 1980-х годов Брестский завод начал выпускать более удобные модели плит. Например, модель 1457 оснащали электроподжигом, подсветкой духовки, двумя горелками (обычной и жарочной), системой контроля пламени, термоманометром и электроприводом для вертела. Эти новшества сделали плиты более современными.
Первый домашний холодильник «Газоаппарат», 1951.
Не менее важной технической составляющей кухни являлся холодильник. В 1950 году Московский завод «Газоаппарат» выпустил первый серийный бытовой абсорбционный холодильник под маркой «Газоаппарат».
Холодильник «Север», 1954.
В 1954 году вместо холодильников «Газоаппарат» начали выпускать модели под маркой «Север». Они тоже были небольшими и ещё не имели полок на дверце. В 1956 году в Великих Луках начали производить первые советские термоэлектрические холодильники «Морозко». Эти компактные модели можно было ставить на пол, на стол или крепить на стену. Задняя стенка таких холодильников сильно нагревалась, поэтому они могли использоваться и как обогреватели.

В феврале 1951 г. холодильники ЗИС-Москва поступили в торговую сеть Москвы. В 1956 году их было выпущено 6230 шт.
Холодильники меньшего размера — «Саратов-2» выпускал Саратовский электроагрегатный завод. Через пять лет завод ежегодно выпускал 120 тыс. холодильников, в конце 1962 г. с конвейера уже сошел миллионный холодильник.
В 60-е Советский Союз наращивает объемы производства. Растет ассортимент советских холодильников за счет освоения новых марок. Уже почти в каждой семье есть блестящий помощник по хозяйству.
Советский холодильник «ЗИЛ-Москва» — легенда ретро-дизайна и до сих пор эстетически привлекает ценителей своей обтекаемой формой, а также прочностью лакокрасочного покрытия, которому позавидует любой автомобилист.
Для решения проблемы небольшого пространства кухонь хрущёвок были придуманы подвесные холодильники, которые стали появляться в продаже в начале 70-х.
Внешне такой холодильник выглядил как обычный кухонный шкафчик, разве что чуть большего размера, который крепился на стене и имел два отделения с полками, функциональную дверцу с отделением для бутылок и крохотную морозильную камеру. Такие холодильники выпускались под марками «Сарма», «Визма» и «Лига» и различались лишь объемом и типом дверцы: у одних моделей они были распашными, у других — откидными.
Подвесные холодильники фирмы «Сарма» и «Лига», 1970.
Еще одним экспериментальным решением сохранения свободного пространства на кухне было создание модели-гибрида, холодильника, встроенного в кухонную плиту.
Комбинированные холодильники подразделялись на электрические и газовые, и отличались тем, что первые подсоединялись к электрическим кухонным плитам, вторые — к газовым.
В таких кухонных гибридах приходилось потесниться духовке: ее либо размещали вверху, над плитой, либо устанавливали отдельно. Эксплуатационный срок такого холодильника был рассчитан на 15 лет службы, однако подобная техника показалась многим домохозяйкам настолько неудобной, что из продажи эти плито-холодильники исчезли быстрее, чем у них закончился срок службы.
Комбинированный газовый холодильник с плитой и духовкой.
Всесоюзные мебельные выставки в 1956–1968 гг. и их влияние на дизайн мебели
С середины 1950-х до конца 1960-х годов в СССР прошло восемь крупных выставок, демонстрировавших достижения в области мебельного дизайна и производства. До и после этого периода такие мероприятия проводились значительно реже.


Александр Аус, Удо Умберг, Аре Кала, Валентин Кууск. Набор К58-119 на выставке Всесоюзного конкурса 1958 г. в Новых Черемушках / Юрий Случевский. Набор мебели на Всесоюзной выставке в парке Горького
1. «Всесоюзная выставка мебели» в парке Горького (осень 1956 г.) 2. Выставка «Всесоюзного конкурса на лучшие образцы мебели для новых типов квартир односемейного заселения» в Новых Черемушках (начало 1959 г.) 3. «Выставка образцов мебели, санитарно-технического и электротехнического оборудования для общественных и административных зданий» (зима 1959–1960 гг.) 4. Выставка первой очереди «Второго Всесоюзного конкурса на создание лучших образцов мебели для современных квартир, домов гостиничного типа, номеров гостиниц и студенческих общежитий» (конец 1961 — начало 1962 гг.) 5. Выставка второй очереди того же конкурса (ВДНХ, 1963 г.) 6. Тематическая выставка лучших образцов мебели (ВДНХ, конец 1963 г.) 7. Тематическая выставка «Лучшие образцы мебели для жилых зданий» (ВДНХ, 1965 г.) 8. Всесоюзная мебельная выставка, приуроченная к юбилею Октябрьской революции, проходившая на ВДНХ зимой 1967–68 гг.


Лигия-Мария Стапулёнине, Альгимантас Стапулёнис. Набор К61-121, 1961-62/ Александр Гуревич, Анатолий Шевченко. Набор К61-120, 1961-62.
Выставки в Москве имели ограниченный охват: они проходили на окраинах города, куда было неудобно добираться. Основная аудитория состояла из москвичей, в то время как изменить вкусы требовалось по всей стране. Для этого дополнительно выпускалась массовая литература: книги об эстетике быта, воспитании вкуса и домашнем хозяйстве. Эти издания иллюстрировались фотографиями современных квартир, однако найти такие примеры в СССР было сложно, так как новое зачастую сочеталось со старым.


Юрий Случевский, Александр Белорусский. Набор мебели К58-103, 1959 г. / НИИ экспериментального проектирования ACuA СССР и фабрика «Стандард», 1959 г.
В 1958 году и в 1961 году (первая очередь второго конкурса) проводились конкурсы на создание мебели для малогабаритных квартир типовых домов. Выставка 1959–1960 годов и вторая очередь конкурса, завершившаяся в 1963 году, занимались проектами для общественных зданий.
Из-за перехода советской архитектуры на типовые проекты индивидуальное строительство стало редким, поэтому мебель нужно было адаптировать к утверждённым стандартным планировкам массового строительства.
Фотографии с мебельных выставок 1958–1962 годов, где обстановка напоминала жилые квартиры, популяризировали городской интерьер и стали важным источником информации для общества. Хотя позже выставки перестали показывать примерные интерьеры, первые восемь сыграли важную роль, связывая региональных дизайнеров, фабрики и ведомства в условиях децентрализации экономики.


Витаутас Бейга, Эугениюс Альгимантас Гузас. Набор PK-63, 1965/ ПКБ по мебели (Новосибирск). Набор НС-18 на тематической выставке мебели на ВДНХ Москвы (1965)
Благодаря этим выставкам общество смогло перейти к «современному стилю» в советской мебели и дизайне интерьеров. Они во многом повлияли на дальнейшее развитие этого направления в СССР. Иллюстрации в рекомендательной литературе и материалы с выставок, особенно тех, что проходили на стыке десятилетий, надолго закрепили образ «современного стиля», каким его знали обычные люди.
Заключение
С начала 1960-х годов стиль мебели начал формироваться под влиянием изменений в архитектуре, особенно в жилищном строительстве.
Основные изменения:
1. Сокращение размеров мебели. Уменьшение жилой площади квартир, особенно в «хрущёвках», требовало компактных решений. 2. Развитие конструктивных решений. Несмотря на вынужденный характер изменений, это привело к появлению практичных и интересных конструкций.
Характеристики мебели:
1. Простота и функциональность. Предметы мебели отличались удобством и лаконичным дизайном. 2. Эстетическая проработка. Даже в условиях экономических ограничений каждая вещь была продумана и обладала узнаваемым художественным стилем.
Статья «Всесоюзные мебельные выставки в 1956–1968 гг.» — А. К. Дежурко. https://www.academia.edu/75788358/Всесоюзные_мебельные_выставки_в_1956_1968_гг
Статья «Всесоюзный конкурс на лучшие образцы мебели 1958 года: поворот от исторических стилизаций к модернизму» — А. К. Дежурко. https://www.academia.edu/75788358/Всесоюзные_мебельные_выставки_в_1956_1968_гг
Диссертация на соискание ученой степени кандидата искусствоведения «Дизайн мебели в СССР: проектирование и производство (1920–1980-е гг.)» –Семенов А. В. https://www.dissercat.com/content/evolyutsiya-dizaina-kukhonnoi-mebeli-v-rossii
Автореферат диссертации на соискание ученой степени кандидата искусствоведения «Эволюция дизайна кухонной мебели в России» — Наумова Ю.С. https://rguk.ru/upload/iblock/000-aspirantura/defence-archive/NaumovaUS/Автореферат_Наумова%20Ю.%20С.pdf
«Квартира и ее убранство». О. Г. Баяр, Р. Н. Блашкевич, 1962. https://vk.com/photo-129490153_457280131
«Пионеры советского дизайна» Селим Хан-Магомедов, 1995. https://tatlin.ru/lib/pionery_sovetskogo_dizajna
«Квартира и ее убранство». О. Г. Баяр, Р. Н. Блашкевич, 1962. https://vk.com/album-129490153_268871239
Статья «Всесоюзные мебельные выставки в 1956–1968 гг.» — А. К. Дежурко. https://www.academia.edu/75788358/Всесоюзные_мебельные_выставки_в_1956_1968_гг
Вадим Качан. Документальные фотографии 1980-х. https://disk.yandex.ru/a/8NwVifam3WSNZL