

Целью исследования является комплексный анализ выбранного объекта через призму «духа времени», «духа места» и мирового опыта реновации индустриальной архитектуры.
Раздел, посвящённый духу времени, рассматривает объект в историческом контексте и включает: — изучение обстоятельств его возникновения и характеристик территории до строительства; — анализ функционального использования объекта на протяжении всего периода его существования; — выявление трансформаций, связанных с изменением функции здания.
Раздел духа места фокусируется на градостроительном анализе территории, в том числе: — исследовании транспортной доступности; — изучении функциональной структуры прилегающей застройки; — анализе наличия в городе объектов со схожими или планируемыми функциями.
Раздел, посвящённый мировому опыту, рассматривает примеры успешной реновации фабрик и промышленных зданий.
Изучение данных кейсов позволяет выявить эффективные подходы к трансформации подобных объектов и определить возможные стратегии адаптации завода «Кристалл» под современные потребности.
— актуальность темы
Реновация завода «Кристалл» в Калуге необходима для сохранения исторической идентичности территории, повышения ее привлекательности и функциональности, а также для развития городской инфраструктуры.
Проект позволит интегрировать историческое наследие города в его структуру. Создание нового современного общественного пространства в Калуге станет новой точкой притяжения как для местного населения, так и для туристических потоков города.
— цель
Цель проекта — насыщение памятника архитектуры новой функцией, необходимой для города
— задачи
— Превратить исторический промышленный объект — завод «Кристалл» — в современный музейно-культурный кластер, который станет драйвером туризма, новым центром притяжения для горожан и образцом ревитализации наследия
— Разработка многофункционального выставочного пространства с сохранением исторической идентичности. При этом пространство должно отвечать современным потребностям общества.
— Создать гармоничное сочетание старой промышленной архитектуры с современными тенденциями в дизайне общественных помещений
[1] ДУХ ВРЕМЕНИ
— содержание раздела
— Годы строительства. Авторы проекта. — Старые карты местности/района. — Карта времени возникновения здания. — Старые фотографии, планы, разрезы, фасады. — История смены функций здания. — Функциональные особенности здания.
В современных обзорах сети «кристаллов» Калуга фигурирует в одном ряду с Рязанью, Ярославлем, Тулой, Нижним Новгородом и др., что подтверждает «сетевой», типовой характер программы, а не уникальное точечное решение.
Согласно архивным материалам, научным публикациям и актам государственной экспертизы, все эти объекты были возведены в конце XIX — начале XX века по типовому проекту инженера В. Н. Пясецкого.
Это подтверждает, что перед нами не единичное сооружение, а часть масштабной казённой строительной программы, реализованной по единому образцу в разных городах России.
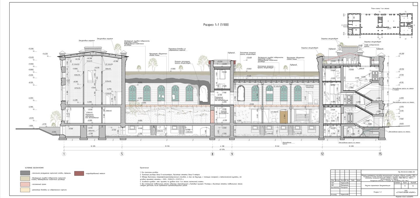
Согласно проекту В. Н. Пясецкого, ансамбль включал главный корпус розлива и хранения, здание цистерн/очистки спирта, вспомогательные склады и служебные постройки.
Архитектурный образ — огнестойкая кирпичная пластика с аркадой окон и крупными пролётами; ключевая конструктивная особенность — своды Монье в основном корпусе.
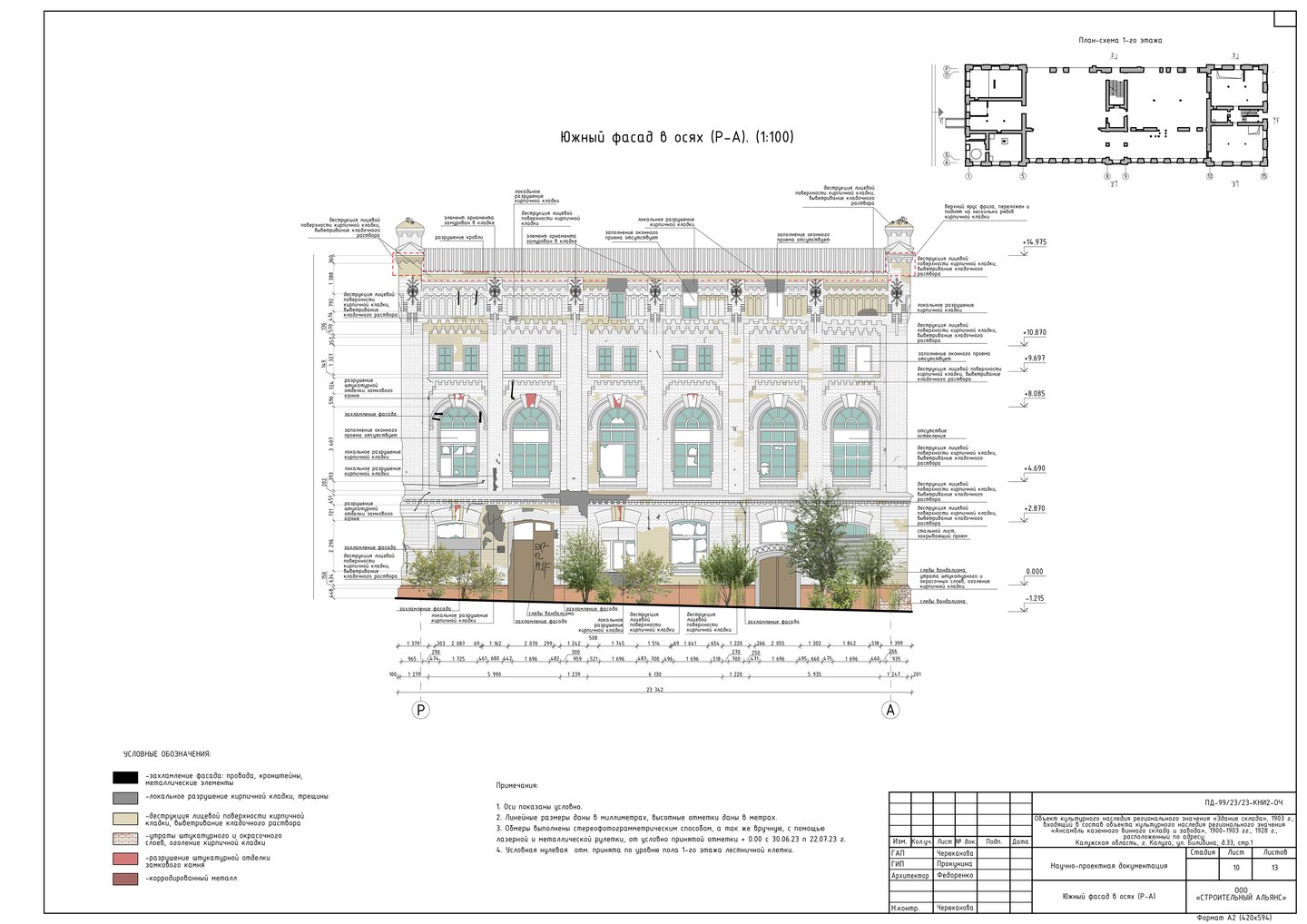
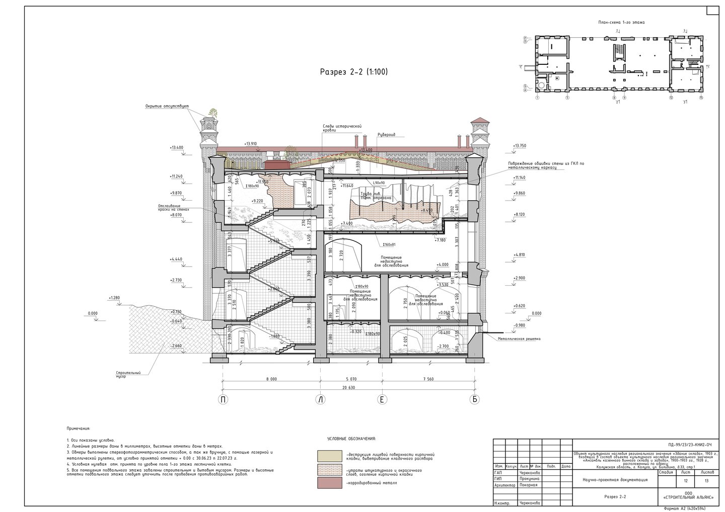
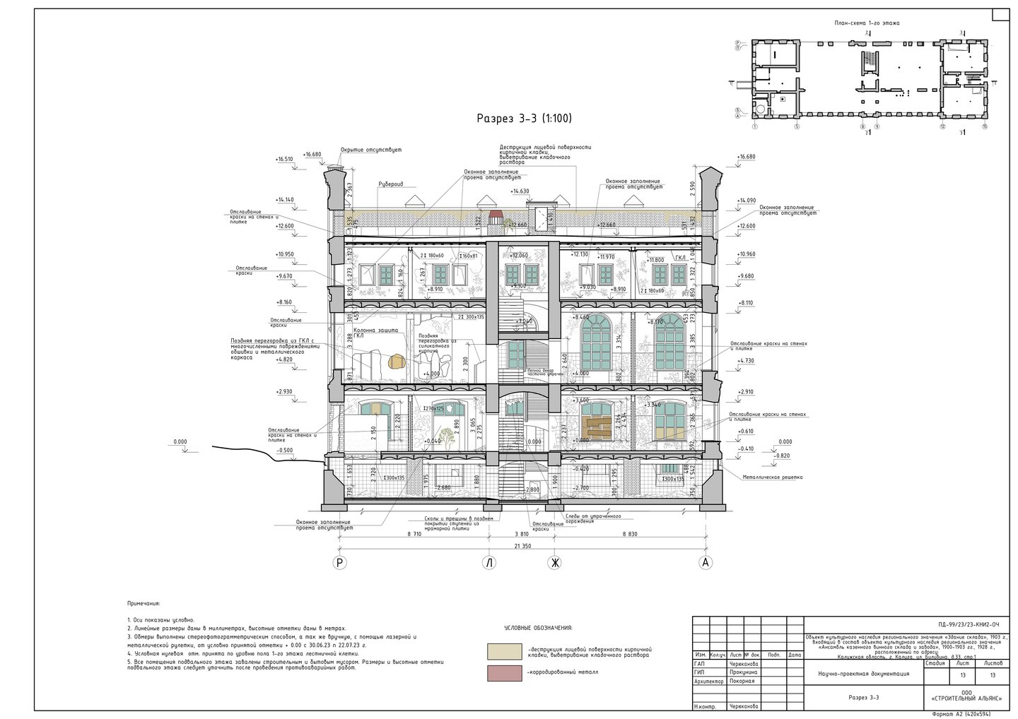
— фасад и разрез (по чертежам В. Н. Пясецкого)
— историческая справка
Склад быстро стал значимым производством для губернии: к 1910 году объёмы были существенными, работали сотни людей.
В 1914 году «сухой закон» изменил режим работы, а в 1925-м объект перезапущен как водочно-разливочный завод, получивший название «Кристалл».
Во время Великой Отечественной войны на заводе, помимо профильной продукции, разливали бутылки с «коктейлем Молотова»; предприятие продолжало работать и для нужд фронта и тыла.
В послевоенные и позднесоветские годы «Кристалл» стал одним из брендов региона, его продукция экспортировалась в десятки стран (в источниках называют 82 страны).
В 1990-е «Кристалл» оставался одним из крупнейших налогоплательщиков области, однако в 2000-е последовали смена собственников, проблемы с лицензированием и задолженностями, что в итоге привело к банкротству предприятия.
Производственная деятельность на исторической площадке была прекращена к 2010 году.
С 2019 года комплекс имеет статус объекта культурного наследия регионального значения; действующие планы предусматривают реставрацию исторических фасадов, воссоздание сводов и открытие территории городу в составе реновации.
Визуализация бюро «proekt cvet», обработанная в ИИ
Таким образом, калужский «Кристалл» — материальное свидетельство государственной реформы Витте и индустриализации начала XX века, типологически связанное с сетью казённых складов, но имеющее местные особенности силуэта и застройки квартала. Его ценность — не только в кирпичной пластике и крупнопролётных объёмах, но и в многослойной памяти труда, войны, перестроек и современного поиска новой роли. Корректная реновация может вернуть комплексу городскую жизнь, не разрушив историческую аутентичность.
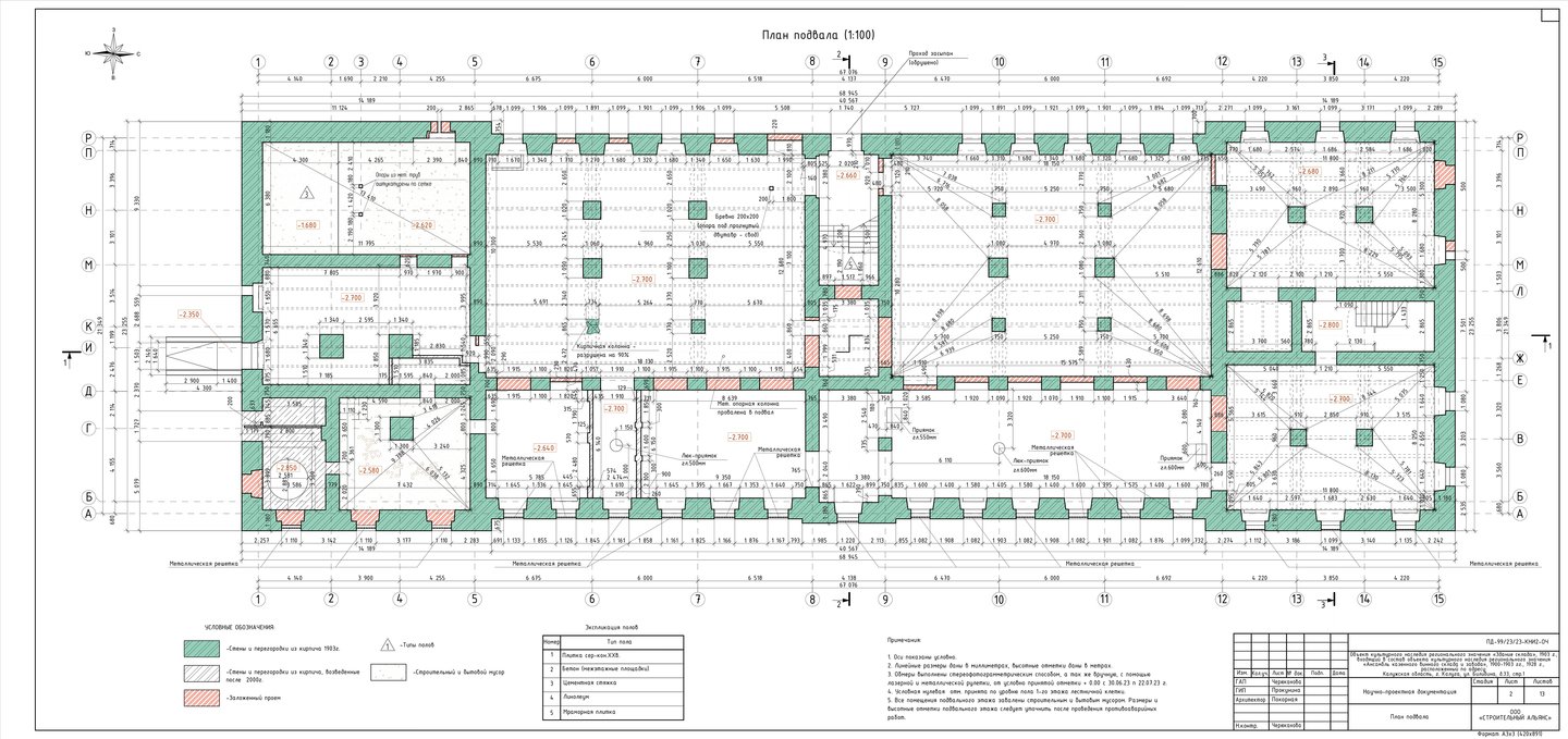
— планы состояние на сегодняшний момент
— разрезы
— фасады
[2] ДУХ МЕСТА
— градостроительный анализ
[3] МИРОВОЙ ОПЫТ
Трансформация промышленного наследия в культурные институции — давно утвердившаяся глобальная практика, которая позволяет не только сохранить историческую память места, но и создать уникальные, аутентичные пространства.
В данном разделе будет проведён сравнительный анализ пяти кейсов, выбранных по принципу релевантности проекту завода «Кристалл»: — Tate Modern (Лондон, Великобритания) — Zeche Zollverein (Эссен, Германия) — Центр «Зотов» (Москва, Россия) — «ГЭС-2» (Москва, Россия) — MASS MoCA (Норт-Адамс, США)
Цель анализа — выявление работающих приёмов: как взаимодействуют историческая ткань и современные вставки, как организуется пространство и как бюро переосмысляют пространства.
Синтез этих наблюдений станет фундаментом для концепции, которая будет одновременно подчеркивать уникальность «Кристалла» и соответствовать актуальным международным стандартам музейного проектирования.
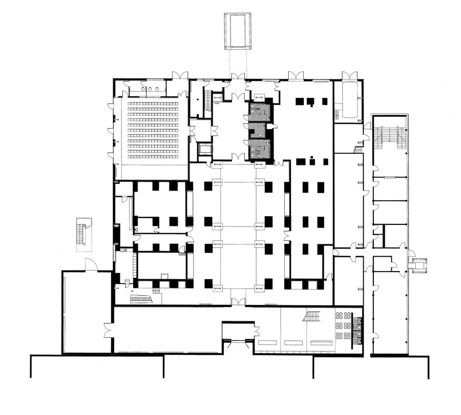
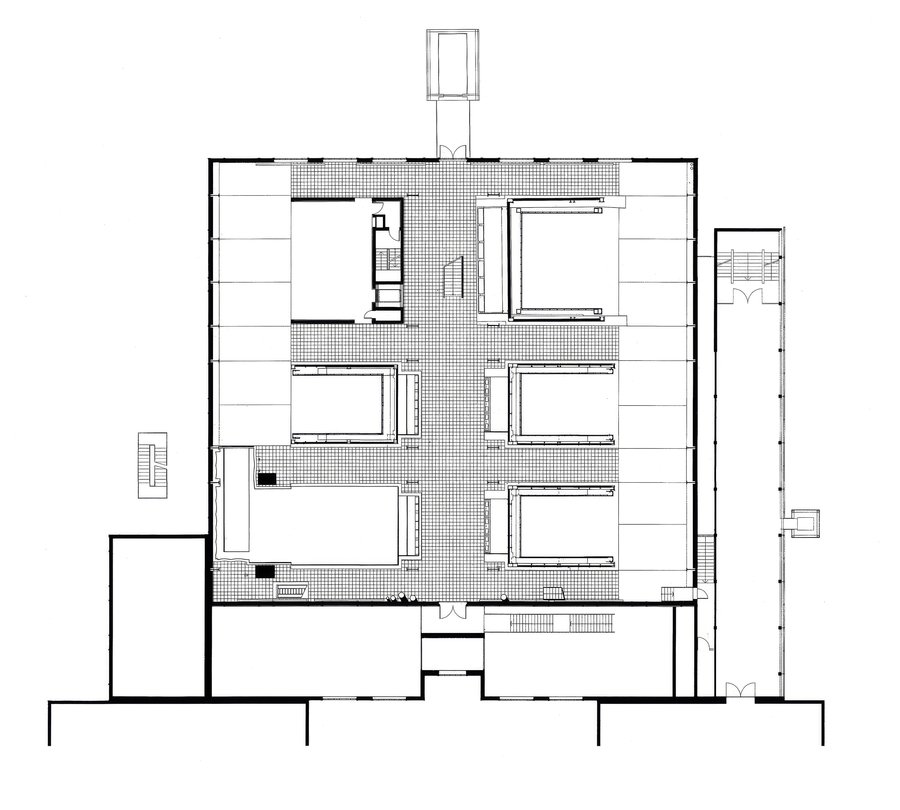
Tate Modern (Лондон, Великобритания)
— планы
— разрезы
Архитекторы: Жак Херцог и Пьер де Мерон
Электростанция «Бэнксайд» в Лондоне простаивала без дела с 1981 по 2000 год, пока не открылась для публики как галерея Тейт Модерн. Швейцарские архитекторы Жак Херцог и Пьер де Мерон подошли к реконструкции довольно прямолинейно, создав современное общественное пространство, не умаляя исторического значения здания.


Tate Modern расположена напротив собора Святого Павла (St Paul’s Cathedral) через реку Темзу.
Расположение мощной индустриальной архитектуры бывшей электростанции Бэнксайд на одном берегу и величественного исторического собора на другом стало одним из самых узнаваемых символов современного Лондона и ярким примером диалога эпох.
Проект реконструкции решает ключевую задачу современного музейного пространства — интеграцию экспозиционных, образовательных и социальных функций.
Объемно-пространственное решение пристройки, имеющее форму пирамиды, создано на основе анализа геометрии существующей застройки и градостроительного контекста.
Ключевой идеей в концепции стало сохранение и адаптация исторических подземных резервуаров («цистерн»), которые выполняют роль структурного и смыслового ядра нового комплекса.
Функциональное зонирование включает:
— Объединенные выставочные зоны (камерные и масштабные) — Аутентичные пространства для site-specific* инсталляций — Многофункциональные общественные зоны для рекреации и обучения — Модернизированные блоки для образовательных программ
*Site-specific инсталляции (от англ. — «ориентированный на конкретное место») — это произведения искусства, которые создаются с учетом и для определенного, уникального пространства и не могут существовать вне его.
— интерьер
Внутри Тейт Модерн можно увидеть уникальное сочетание индустриального наследия и современного музейного пространства, где каждая зона имеет свою атмосферу и функционал.
Турбинный зал
Главная входная зона и сердце Тейт Модерн — гигантский Турбинный зал, бывшее промышленное пространство высотой 35 метров и длиной 152 метра. Сейчас это вестибюль и площадка для масштабных инсталляций ведущих художников мира. Свет и воздух создают ощущение крытой улицы — городской площади, где проходят арт-события и выставки.


Галерейные пространства
В Тейт Модерн собраны крупнейшие коллекции современного искусства с 1900 года, в том числе работы Матисса, Пикассо, Дали, Уорхола и многих других. Галереи разделены по направлениям и эпохам, начиная от натюрморта и пейзажа до минимализма и концептуализма. Пространства оформлены в сдержанном, индустриальном стиле: фактурный бетон, лаконичные деревянные полы, открытые конструкции.
Switch House и общественные зоны
В новом корпусе Switch House особое внимание уделено общественным зонам: здесь есть места для отдыха, релаксации и общения, спиралевидная лестница с возможностью сидеть на ступеньках и панорамные окна с видом на Темзу. Башня Switch House — пример инновационной архитектуры, в интерьерах которой много световых эффектов за счет перфорированных стен.


Ресторан, кафе и смотровые площадки
На верхних этажах расположены ресторан и VIP-зал в двухэтажном застекленном пентхаусе, откуда открываются захватывающие виды на город и собор Св. Павла. Сезонное меню, классический английский чай и творческая атмосфера располагают к долгому отдыху после прогулки по музею.
Zeche Zollverein (Эссен, Германия)
— планы


— разрез
Архитекторы: Фриц Шупп и Мартин Креммер
Комплекс Zollverein в Эссене, Германия — один из самых известных примеров преобразования промышленного объекта в культурный центр, признанный объектом Всемирного наследия ЮНЕСКО.
Крупнейшая угольная шахта Европы была закрыта к 1986 году в связи с упадком добывающей промышленности. С 1990-х годов стартовала программа «сохранения через преобразование»: территория стала шаг за шагом превращаться в центр культуры, дизайна и образования. Был проведён комплекс работ по сохранению и конверсии промышленных построек, чтобы вдохнуть в них новую жизнь, не разрушая наследие.
Фриц Шупп и Мартин Креммер — авторы комплекса (строительство: 1928–1932), создали ансамбль в стиле «Новая вещественность», то есть с акцентом на чистую структуру, отсутствие декора, рациональную логику планировки.
Стальной каркас с клинкерной кирпичной облицовкой демонстрирует конструкцию и поток нагрузки прямо на фасаде.
В конце XX — начале XXI века реновацию и новую жизнь комплексу придали Norman Foster, OMA (Рем Колхас), SANAA, HG Merz и другие ведущие архитектурные бюро.
Основные характеристики здания и комплекса — Площадь территории — более 100 гектаров. — Архитектурный стиль: индустриальный модернизм, строгая симметрия, масштабность, ритмичный фасад из кирпича и металлоконструкций. — Ключевые объекты: Шахта XII с главной башней, углеобогатительная фабрика (сейчас музей), цеха переработки, котельная.
В рамках реновации ведущие архитекторы деликатно интегрировали музей Ruhr (OMA), Red Dot Design Museum (Foster), арт-резиденции, образовательные и выставочные пространства, сыграв на контрастах.
Оранжевый эскалатор, новые мосты, выставочные галереи не маскируют, а подчёркивают разницу нового и старого. Бывшие производственные и транспортные артерии превращены в маршруты для пешеходов, событий и выставок, сохраняя индустриальные материалы и формируя новую экологию вокруг комплекса.
Каждый архитектурный элемент подчинён технологическим процессам производства, воплощая идеологию Баухауса. Продуктовые пути, шахты, транспортные маршруты читаются как единая архитектурная структура.
Особенность подхода — минимальное вмешательство в исторические структуры: новые лестницы, эскалаторы, внутренние помещения интегрируются, подчёркивая аутентичность.
Ландшафтная архитектура и инфраструктура спроектированы для интеграции природы и общественных маршрутов, превращая фабрику в парк культуры и инноваций.


Центр «Зотов» (Москва, Россия)
Центр «Зотов» в Москве — это уникальный культурно-образовательный кластер, расположенный на территории бывшего Хлебозавода № 5 имени Василия Зотова, памятника конструктивистской архитектуры 1931 года.
Авторы проекта:
— архитектурное бюро «SPEECH» — архитектурная мастерская «Практика»
В свое время здание стало одним из первых в Москве хлебозаводов-автоматов, в архитектуре которого реализованы принципы конструктивизма: функциональность и технологичность подчеркнуты в чистых геометрических формах и открытых производственных пространствах.
Решение о реставрации и создании Центра конструктивизма «Зотов» было принято из-за отсутствия в России специализированного института на тему конструктивизма и русского авангарда, а также в целях сохранения архитектурного и культурного наследия. Конверсия здания в культурный центр стартовала в 2018 году при поддержке банка ВТБ и архитектурного бюро СПИЧ во главе с Сергеем Чобаном.


Архитекторы Игорь Членов и Алина Гарновская разработали проект, включающий бережное сохранение конструктивистских элементов, восстановление фасадов и приспособление внутренних производственных пространств под выставочные залы, лекционные и кинозалы, а также общественные пространства.


В настоящее время центр позиционируется как площадка, посвящённая теории и практике конструктивизма и русскому авангарду: здесь проводят выставки, лекции, кинопоказы, дискуссии, мастер‑классы и научные программы. В проекты регулярно вовлекают современных художников, архитекторов, дизайнеров и исследователей, чтобы показывать «живой» конструктивизм и связывать наследие 1920–1930‑х с актуальной повесткой.
Функциональные зоны центра распределены по этажам:
1 этаж:
— форум (универсальное общественное и выставочное пространство) — касса/ресепшн — часть магазина «Зотов.Вещь!» — входная зона и сервисные помещения для посетителей — кафе Зотов;
2 и 3 этаж: основные выставочные залы для временных и долгосрочных экспозиций;


4 этаж:
— лекторий — два кинозала — книжный клуб/читальная зона — основной блок магазина «Зотов.Вещь!» — служебные и технические помещения, связанные с кино- и лекционной программой.


ГЭС-2 (Москва, Россия)
ГЭС-2 — старейшая электростанция Москвы 1907 года, преобразованная в музей современного искусства по проекту Ренцо Пьяно и бюро Renzo Piano Building Workshop.
— планы


— разрезы
Перед архитектурным бюро стояли задачи:
— очистить здание от поздних наслоений и вернуть первоначальный «единый» объём электростанции, сохранив исторические металлоконструкции и часть оборудования как память места;
— создать «Дом культуры» в советском смысле — открытую, доступную площадку для визуальных и исполнительских искусств, образования и общения горожан, а не только «музей белого куба»;
— внедрить современную инженерную и экологическую инфраструктуру (новая стеклянная кровля с интегрированными фотоэлементами, система притока свежего воздуха через новые «трубы‑дымоходы», сертификация по LEED Gold).
Для реконструкции ГЭС‑2 Ренцо Пиано использовал довольно типичный для себя «набор» материалов и технологий, заточенный под свет, воздух и экологичность.
Основные материалы
Существующий кирпич и стальные конструкции исторической электростанции: их максимально очистили, усилили и оставили в работе как несущие и визуально читаемые элементы.
Стекло: большая новая кровля и фасадные вставки выполнены как лёгкие остеклённые конструкции, обеспечивающие глубокое дневное освещение основного нефа.
Сталь: новые фермы, мостики, лестницы, ограждения, а также новые «дымоходы» (вентиляционные башни) — всё это стальные элементы с акцентом на тонкий, инженерный рисунок.
Современные внутренние ограждающие конструкции (каркас + теплоизоляция + облицовка) для создания музейного климатического контура в подземных и боковых объёмах.
MASS MoCA (Норт-Адамс, США)
— планы
ЗАКЛЮЧЕНИЕ
— обобщение
Анализ состояния завода «Кристалл» и исследование мирового опыта реновации промышленных объектов показали, что успешный проект требует комплексного подхода, который формирует особую стратегию проектирования, основанную на диалоге истории и современности.
Сохранение духа места (genius loci), принципы инклюзивности, функциональная гибкость и внедрение современных музейных технологий становятся ключевыми требованиями к формированию концепции.
Изучение лучших мировых практик позволит не просто создать музей, а сформировать многослойное общественное пространство.
Преобразование бывшего винно-ликерного завода в многофункциональный культурный кластер будет способствовать формированию новой идентичности района, значительному увеличению туристической привлекательности Калуги и созданию полноценной точки притяжения для горожан.
Таким образом, глубокий предпроектный анализ и концептуальный подход к реновации «Кристалла» обеспечивают не только решение задачи сохранения исторического наследия, но и задает стандарт работы с промышленными интерьерами, где материальная память места становится главным элементом современного дизайна.
БИБЛИОГРАФИЯ
Borisov architects: [сайт]. — URL: https://borisovarchitects.com/zhilaya-zastroyka-kaluga (дата обращения: 20.11.2025).
Дипломы магистров и бакалавров Академии Глазунова // Archi.ru. — URL: https://archi.ru/russia/97388/diplomy-magistrov-i-bakalavrov-akademii-glazunova (дата обращения: 20.11.2025).
RetroMap: [сайт]. — URL: https://retomap.ru/Калуга (дата обращения: 20.11.2025).
Это Место: [сайт]. — Карта Калуги 1982 г. (спутник). — URL: http://www.etomesto.ru/map-kaluga_sputnik-1982/?y=54.530463&x=36.273924 (дата обращения: 20.11.2025).
Это Место: [сайт]. — Старинные карты Калуги. — URL: http://www.etomesto.ru/kaluga/maps.php?start=20 (дата обращения: 20.11.2025).
Architect Style: [блог]. — LiveJournal. — URL: https://architectstyle.livejournal.com/6633.html (дата обращения: 20.11.2025).
Tate Modern New Extension Retail Space // Behance. — URL: https://www.behance.net/gallery/38470607/Tate-Modern-New-Extension-Retail-Space?tracking_source=search (дата обращения: 20.11.2025).
Ampliación Tate Modern, Londres // Arquitectura Viva. — URL: https://arquitecturaviva.com/works/ampliacion-tate-modern-londres-8 (дата обращения: 20.11.2025).
Domino Sugar Refinery // ArchDaily. — URL: https://www.archdaily.com/1007905/domino-sugar-refinery-pau (дата обращения: 20.11.2025).
Ampliación Tate Modern, Londres // Arquitectura Viva. — URL: https://arquitecturaviva.com/works/ampliacion-tate-modern-londres-8?utm_medium=organic&utm_source=yandexsmartcamera (дата обращения: 20.11.2025).
Zotov Constructivism Center. A Transformation Project that Preserved the Layers of Time // The Plan. — URL: https://www.theplan.it/award-2024-Culture/zotov-constructivism-center-a-transformation-project-that-preserved-the-layers-of-time-speech-architectural-office (дата обращения: 20.11.2025).
Центр изучения конструктивизма «Зотов» в Москве // Прорус. — URL: https://prorus.ru/projects/centr-izucheniya-konstruktivizma-zotov-v-moskve/ (дата обращения: 20.11.2025).
Хлебозавод им. В. П. Зотова // МастерВатт. — URL: https://masterwatt.ru/objects/sotsialnye-obekty/khlebozavod-im-v-p-zotova/ (дата обращения: 20.11.2025).
Центр «Зотов»: новый дом русского авангарда в Москве // Delarte. — URL: https://delartemagazine.com/art/centr-zotov-novyj-dom-russkogo-avangarda-v-moskve/ (дата обращения: 20.11.2025).
ИСТОЧНИКИ ИЗОБРАЖЕНИЙ
Tate Modern Blavatnik Building [Изображение] // Arquitectura Viva. — URL: https://arquitecturaviva.com/assets/uploads/obras/40725/av_medium__av_72149.webp?h=fea41967 (дата обращения: 20.11.2025).
Tate Modern: study, 2006 site plan, plan, section, perspective [Изображение] // Our House is Our World: [сайт]. — URL: https://i0.wp.com/ourhouseisourworld.wordpress.com/wp-content/uploads/2013/09/07_conty_tate-modern_study_2006siteplan-plan-section-perspective.jpg?ssl=1 (дата обращения: 20.11.2025).
Tate Modern, floor plan L3 [Изображение] // ArchEyes. — URL: https://i0.wp.com/archeyes.com/wp-content/uploads/2023/05/Tate-Modern-Herzog-and-de-Meuron-London-Museum-Cultural-Landscape-ArchEyes-floor-plan-L3.jpg?w=1600&ssl=1 (дата обращения: 20.11.2025).
Tate Modern Extension diagram [Изображение] // Pinterest. — URL: https://i.pinimg.com/originals/9b/79/fc/9b79fc3a751948768e36fb2bb58d85c6.jpg (дата обращения: 20.11.2025).
Herzog & de Meuron: Tate Modern new building, London [Изображение] // Afasia ArchZine. — URL: https://afasiaarchzine.com/2015/09/herzog-de-meuron-56/herzog-de-meuron-tate-modern-new-building-london-24/ (дата обращения: 20.11.2025).
Tate Modern, section drawing [Изображение] // National Taiwan University of Science and Technology. — URL: https://www.ad.ntust.edu.tw/grad/think/Typology(95)/final%20works/m9413104/m9413104/tate%20modern%20section1.jpg (дата обращения: 20.11.2025).
Tate Modern Switch House, interior perspective [Изображение] // Pinterest. — URL: https://i.pinimg.com/originals/1c/0c/96/1c0c968ab75d612b5ce7ca47c4c38faf.jpg (дата обращения: 20.11.2025).
Tate Modern, architectural model [Изображение] // Pinterest. — URL: https://i.pinimg.com/originals/b7/f2/bc/b7f2bcb9168eb54534df8192d85027b0.jpg (дата обращения: 20.11.2025).
Tate Modern, floor plan South-CC [Изображение] // ArchEyes. — URL: https://archeyes.com/wp-content/uploads/2023/05/Tate-Modern-Herzog-and-de-Meuron-London-Museum-Cultural-Landscape-ArchEyes-floor-plan-S-CC.jpg (дата обращения: 20.11.2025).
Tate Modern Switch House, diagram [Изображение] // Pinterest. — URL: https://i.pinimg.com/originals/62/20/9a/62209a96d4c48f0e15e9e077767088c9.jpg (дата обращения: 20.11.2025).