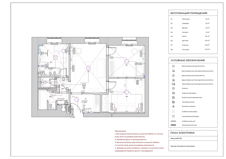
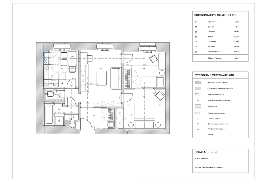
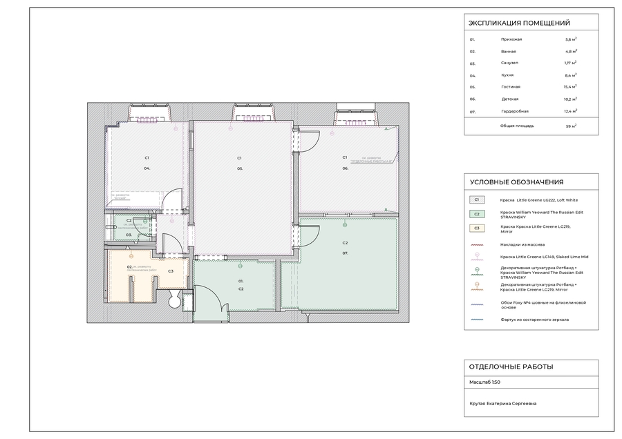
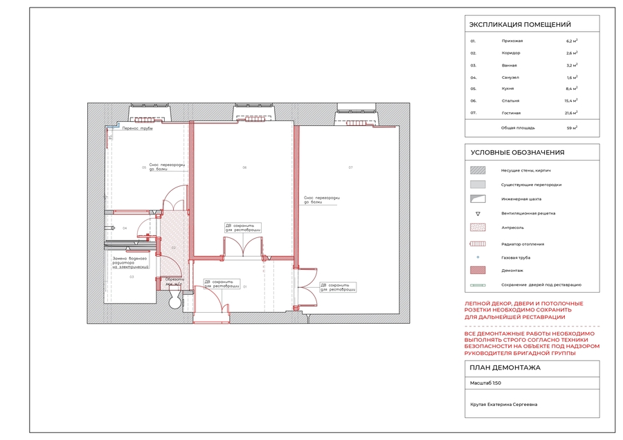
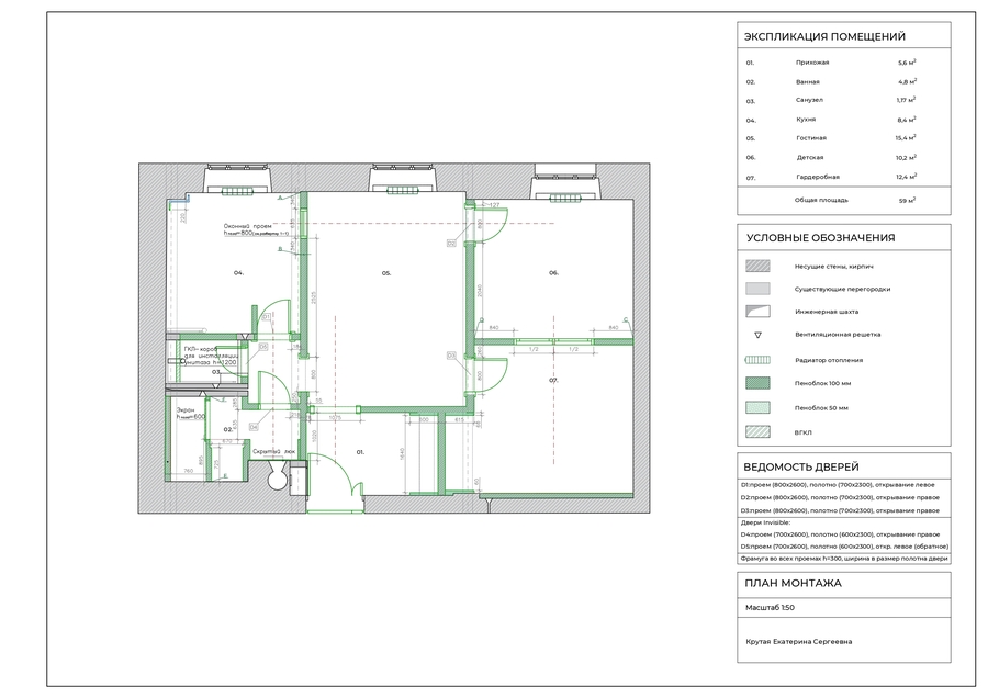
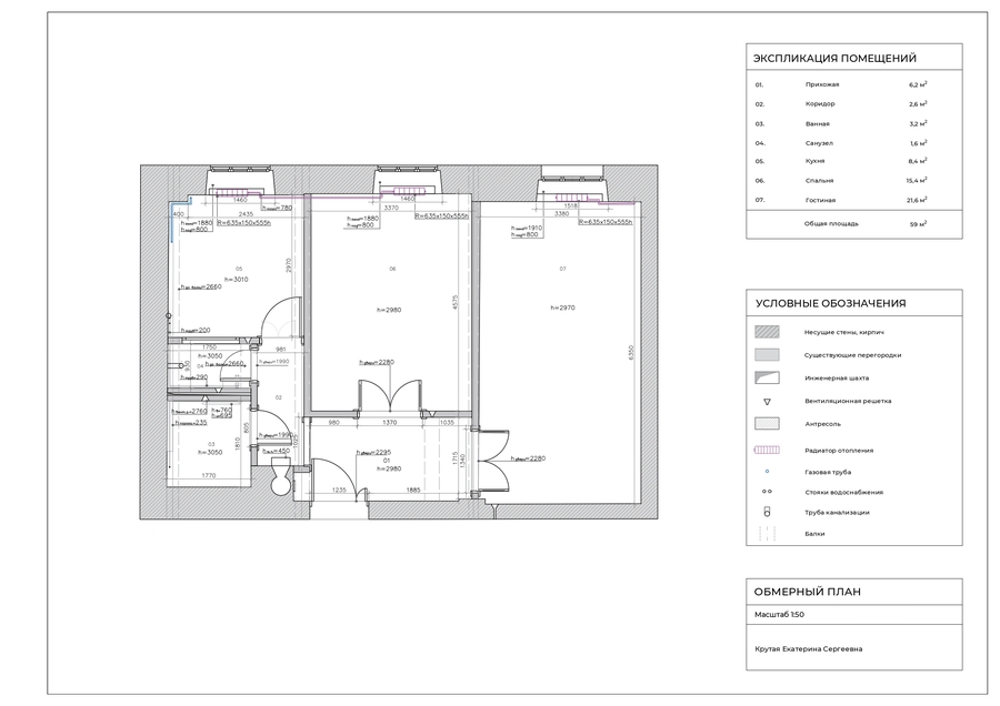
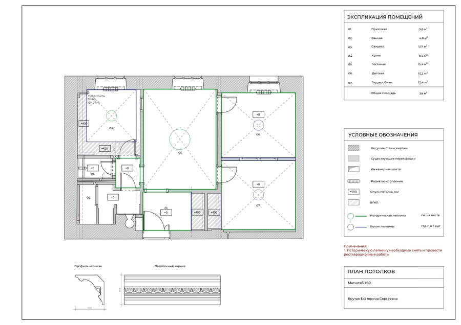
Квартира в старом фонде площадью 59,6 кв. м. для семьи из трех человек.
В планировке требовалось продумать для каждого отдельную спальню, рабочие зоны, место для стиральной и сушильной машины и функциональную кухню. Заказчики любят винтаж, слушают музыку на виниле и всей семьёй часто смотрят кино. Основной идеей визуального решения была память поколений и истории, заключённая в одной квартире.
We use cookies to improve the operation of the HSE website and to enhance its usability. More detailed information on the use of cookies can be fou...
Show more
Press space bar to start a drag.
When dragging you can use the arrow keys to move the item around and escape to cancel.
Some screen readers may require you to be in focus mode or to use your pass through key
Press space bar to start a drag.
When dragging you can use the arrow keys to move the item around and escape to cancel.
Some screen readers may require you to be in focus mode or to use your pass through key
Press space bar to start a drag.
When dragging you can use the arrow keys to move the item around and escape to cancel.
Some screen readers may require you to be in focus mode or to use your pass through key
Press space bar to start a drag.
When dragging you can use the arrow keys to move the item around and escape to cancel.
Some screen readers may require you to be in focus mode or to use your pass through key
Press space bar to start a drag.
When dragging you can use the arrow keys to move the item around and escape to cancel.
Some screen readers may require you to be in focus mode or to use your pass through key