
Рубрикатор
— Концепция — Ассирия — Вавилон — Египет — Крит — Сходства и различия комплексов — Заключение — Библиография — Источники изображений
Концепция
Архитектура Древнего мира нередко воспринимается через призму монументальности, инженерных достижений и эстетики, однако дворцовые комплексы — это не просто здания. Они представляют собой материализацию власти, пространственные схемы сакрального порядка и визуальные модели идеологического мировоззрения разных государств. Архитектурная форма становится средством коммуникации между правителем и обществом, связывает земное и сакральное, внутренние и внешние пространства. В таком контексте визуальный анализ позволяет рассматривать архитектуру не только как функциональную и эстетическую категорию, но и как универсальный язык, через который древние цивилизации выражали свое понимание власти, порядка и места человека в мире.
Тема исследования выбрана с целью изучить способы, которыми архитектура передавала идеи власти и порядка в древних цивилизациях. Ассирийские, вавилонские, египетские и критские дворцы демонстрируют разнообразие зодческих приемов — от строгой осевой симметрии и монументальных масштабов до сложных планировок с внутренними двориками и различными помещениями. Анализ широкого круга объектов позволяет выявить внутренние закономерности цивилизаций и сравнить подходы каждой. Основной визуальный материал включает планы комплексов, реконструкции, фотографии архитектурных элементов и декора. Такой подбор позволяет анализировать функциональную организацию пространства и его символическое наполнение, что напрямую отвечает за ключевой вопрос исследования. Этот принцип обеспечивает богатый визуальный ряд и дает возможность проследить, как архитектура формирует представление о власти и пространстве, делая ее одновременно понятной и впечатляющей.
Исследование построено по принципу сравнительного анализа цивилизаций. Такая последовательность позволяет раскрыть уникальность архитектурного кода каждой культуры, а затем — в заключительном разделе — провести их сравнение по ключевым параметрам: предназначению комплексов, архитектурным доминантам, технологиям и символике власти.
Текстовые источники позволяют датировать дворцы, уточнять планировки, символику и назначение пространств. Однако главным инструментом анализа является визуальное наблюдение и сопоставление.
Как архитектура дворцовых комплексов отражает различия в картине мира древних цивилизаций?
Дворцы Древнего мира формируют универсальный визуальный код власти, основанный на монументальности, сакрализации центра и иерархии пространств. Различия между Ассирией, Вавилоном, Египтом и Критом отражают способы визуализации власти. Анализ множества дворцов внутри каждой цивилизации позволяет выявить как внутреннюю вариативность, так и общие закономерности архитектурного языка.
Ассирия
Ассирийские дворцовые комплексы дают один из первых наиболее полно сохранившихся примеров работы архитектуры как четко организованной среды. Масштабность планировок, выраженный контроль маршрута посетителей и богатое разнообразие рельефов делают Ассирию отправной точкой для анализа ранних форм дворцовой архитектуры.


План дворцового комплекса Саргона II в Дур-Шаррукине, Ассирия, 717-707 гг. до н. э. // Реконструкция дворцового комплекса Саргона II в Дур-Шаррукине, Ассирия, 717-707 гг. до н. э.
Так, дворец Саргона II построен на массивной глинобитной платформе и окружен толстыми укрепленными стенами, что подчеркивает его доминирование над ландшафтом. Внутри цитадели располагались парадные залы, жилые помещения и внутренние дворы, соединенные арками и пандусами. Высота платформы и масштаб входных групп создают впечатление значимости комплекса, а внутренняя организация помещений демонстрирует продуманную симметрию дворца.


Реконструкция северной части города Ашшур, Ассирия, VIII–VII в. до н. э. // Реконструкция храма Ану и Адада, Ассирия, конец XII — начало XI вв. до н. э.
Ашшур — наглядная модель власти Ассирии: храм Ану и Адада на возвышенной платформе доминирует над низкой городской застройкой. Это господство подкреплялось расположением — комплексы строили у рек, что давало защиту и торговые преимущества.


План дворцового комплекса в Тиль-Барсипе, Ассирия // Реконструкция дворцового комплекса в Тиль-Барсипе, Ассирия, ок. VIII в. до н. э.
В Тиль-Барсипе ассирийская тенденция сохраняется: массивный дворцовый комплекс возвышается над городской застройкой, а его размещение у реки повторяет характерное расположение таких центров.
Реконструкция дворца в Ниневии, Ассирия, ок. VII–VI в. до н. э.
Ассирийские дворцовые комплексы демонстрируют единый архитектурный принцип через строгую геометрию и продуманную организацию: власть возвышается над городом как буквально, так и символически.
Монументальность ассирийских дворцов служила воплощением неограниченной власти цивилизации.
Вавилон
Вавилонская архитектура достигает своего расцвета благодаря разработке множества инновационных строительных технологий. Как и в Ассирии, при возведении дворцов вавилоняне в первую очередь думали о безопасности, что объясняет сходство расположения и монументальности комплексов с ассирийскими постройками.


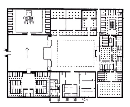
План города, Вавилон, VI в. до н. э. // План южного дворца Навуходоносора II, Вавилон, VI в. до н. э.
Дворец Навуходоносора II — один из самых популярных и частично сохранившихся до наших дней комплексов. Он строился по привычному для того времени принципу строгой геометрии. Дворец расположен рядом с водными каналами, что обеспечивало оборону и коммуникацию.
План южного дворца демонстрирует симметрично выстроенное пространство внутри комплекса — та же знакомая структура строения в Древнем мире.


Реконструкция города, Вавилон, VI в. до н. э.
Общий вид Вавилона подчеркивает непрерывность оборонительных стен, которые охватывают весь город, а не только дворцовый комплекс. Такая система делает поселение единым укрепленным целым. Толстые и высокие стены сопоставимы по масштабу с ассирийскими, помимо выполнения функции защиты правителя, они становятся частью общей структуры.
Реконструкция ворот Иштар, Вавилон, 575 г. до н. э.
Ворота Иштар — одна из самых узнаваемых построек Древнего мира, и их слава напрямую связана с мастерством вавилонских инженеров. Использование при строительстве глазурованного кирпича позволило создавать насыщенные поверхности и детализированные рельефы с изображениями животных. Таким образом, строители Вавилона нашли способ сочетать изящную картинку с масштабными постройками.


План Висячих садов Семирамиды, Вавилон, VI в. до н. э. // Реконструкция Висячих садов, Вавилон, VI в. до н. э.
Висячие сады являются самым загадочным сооружением Древнего мира, включаемое многими историками и археологами в список Семи чудес света. Согласно одной из версий, комплекс был возведен по приказу Навуходоносора II для его супруги Аметист — как попытка восстановить облик гор Мидии.
Расположенные рядом с дворцом, сады представляли собой многоуровневую террасную конструкцию с массивной основой, где сложная система ирригации обеспечивала существование растительности на значительной высоте.
Реконструкции Висячих садов Семирамиды, Вавилон, VI в. до н. э.
Внешний вид садов в предполагаемых реконструкциях подчеркивает сложность проекта: многоярусные терассы, насыщенное озеленение и массивные несущие конструкции создают образ «поднятого» ландшафта. Грамотно рассчитанная система подпорных сводов и площадок отражает высокое техническое умение вавилонских мастеров — благодаря сложной системе орошения растения могли существовать на больших высотах.


Руины Вавилона, Ирак, VI в. до н. э.
Хотя от Вавилона сохранились лишь фрагменты стен и фундаменты некоторых переулков, эти руины позволяют точнее понять масштабность древнего города.
Вавилоняне смогли объединить инженерные навыки и художественное видение, что позволило им не только гармонично организовать пространство города, но и создать одно из чудес Древнего мира.
Вавилон — город, где мастерство строителей и продуманная архитектура слились воедино, создав гармоничный и монументальный ансамбль, уникальный для своего времени.
Египет
Архитектура Древнего Египта формировала особый тип монументальных комплексов, в который власть царя и религия существовали как единое целое. В отличие от Месопотамии, где дворец прежде всего играл административную роль, египетские комплексы развивались как пространства культа, посвященные богам и выстроенные вокруг сакральных осей.
План храмового комплекса в Карнаке, Египет, ок. XX в. до н. э.
План Карнакского комплекса показывает, насколько широким было его культовое наполнение: десятки храмов, святилищ, хранилищ и обрядовых двориков формируют единую систему, посвященную различным божествам. Уже на уровне общей схемы считывается роль поклонения и масштабность комплекса, формирующая его как главный центр Фив.


Реконструкции храмового комплекса в Карнаке, Египет, ок. XX в. до н. э.
Масштаб Карнакского комплекса подчеркивали огромные пилоны, протяженные дворы и мощные стены, формировавшие образ непрерывной монументальности. Египтяне добивались торжественности через строгую осевую симметрию, выстраивая все элементы по единой композиционной линии.
Руины Карнакского храмового комплекса, Египет, ок. XX в. до н. э.
Сохранившиеся фрагменты Карнака усиливают его ритуальную значимость: процессии проходили вдоль священной дороги, украшенной сфинксами, ведущей от входа к главным культовым пространствам. Уцелевшие колонны, обелиски и часть храмовых залов позволяют представить масштабность комплекса и его роль как центра поколения богам.


План северного дворца в Ахетатоне, Египет, ок. XIV в. до н. э. // Реконструкция северного дворца Нефертити, Египет, ок. XIV в. до н. э.
Комплекс в Ахетатоне, включавший северный дворец Нефертити, сохранял характерные для египетской архитектуры строгую симметрию и геометрию. Планировка подчинялась принципу осевой композиции: центральная дорога, ведущая через двор с садом к главному зданию, визуально доминировала над второстепенными помещениями.


Реконструкции храма Атона в Ахетатоне, Египет, ок 1346 г. до н. э.
В Ахетатоне также был построен храм Атона, который привлекал внимание своим строением. Здесь находились жертвенники и святилища, через которые осуществлялись ритуалы и приносились подношения богам, передавая религиозный настрой египтян и подчеркивая сакральное назначение комплекса.


План Луксорского храма, Египет, 1400 г. до н. э. // Реконструкция Луксорского храма, Египет, 1400 г. до н. э.
Ярким примером египетской тенденции строительства также является храм в Луксоре. Он был окружен массивной стеной, а у входа возвышались два обелиска. На территории комплекса располагались залы, святилища и двор, построенный Аменхотепом III и расширенный Рамсесом II. Перед главным входом тянулась аллея сфинксов, как и у Карнакского комплекса, подчеркивающая сакральный характер пространства.


Развалины храма в Луксоре, Египет, 1400 г. до н. э.
Несмотря на разрушения, руины храма в Луксоре сохраняют впечатляющую монументальность и величие. Колоссы Рамсеса II демонстрируют масштабный характер комплекса, а многочисленные колоннады с массивными и богато декорированными стволами указывают на архитектурную образованность египетских мастеров и на приближенность царей к богам.


Развалины храма в Луксоре, Египет, 1400 г. до н. э.
Египетские дворцово-храмовые комплексы демонстрируют единство религиозного и архитектурного замысла: они создавались больше для поклонения богам, чем для административного управления. Высокие стены, аллеи, многочисленные колоннады и святилища подчеркивали святость пространства и значимость царя как посредника между богами и людьми.
Архитектура Египта строилась для поклонения богам, превращая дворцовые комплексы в священные центры ритуала и веры.
Крит
Архитектура Крита развивает иной подход к дворцовым комплексам — минойские архитекторы отходят от привычной для других культур симметрии, формируя особенности, которые позже выделят критскую культуру среди соседних цивилизаций.


План Кносского дворца, о. Крит, ок. 1900 г. до н. э. // Реконструкция Кносского дворца, о. Крит, ок. 1900 г. до н. э.
Так, Кносский дворец представляет многоуровневую систему помещений: многоэтажность стала решением такой проблемы, как размещение в одном комплексе царской семьи и ее окружения. Со временем именно такая организация пространства стент характерной особенностью критской архитектуры.


Руины Кносского дворца, о. Крит, ок. 1900 г. до н. э.
Многоуровневую структуру ярко демонстрируют сохранившиеся фрагменты дворца. Остатки колонн, стен и фрески с изображением быка передают художественное мастерство минойских строителей и важность культурных символов в оформлении внутренних пространств.


План дворцового комплекса в Фесте, о. Крит, ок. 1900 г. до н. э. // Реконструкция дворцового комплекса в Фесте, о. Крит, ок. 1900 г. до н. э.
Дворец в Фесте, как и в Кноссе, демонстрирует многоэтажность, частичное отклонение от строгой симметрии и разнообразие пространств: западный двор выражал театральный характер и использовался для проведения различных церемоний, однако комплекс по прежнему оставался политическим и экономическим центром города.
Руины дворцового комплекса в Фесте, о. Крит, ок. 1900 г. до н. э.
От дворца в Фесте сохранились широкие платформы с лестницами и основания зданий, которые показывают, что комплекс был рассчитан на большое количество людей и активное использование открытых пространств для церемоний или собраний.


План дворцового комплекса в Малии, о. Крит, ок. 1900 г. до н. э. // Макет дворцового комплекса в Малии, о. Крит, ок. 1900 г. до н. э.
Другим примером критской архитектуры является дворцовый комплекс в Малии. Из-за большого количества складов на первом этаже, предназначенных, вероятно, для зерна и других ресурсов, многие относят комплекс к «сельскому» типу. Хозяйственный характер дворец приобретает также из-за отсутствия росписей внутри.
Руины дворцового комплекса в Малии, о. Крит, ок. 1900 г. до н. э.
Архитектура критских дворцовых комплексов демонстрирует уникальный подход к пространству: многоуровневая планировка, монументальные залы и сочетание жилых, административных и церемониальных функций создают сложные, живые центры власти. Несмотря на отход от строгой симметрии, каждый дворец тщательно организован, отражая потребности правителя и его окружения.
Критские дворцы — лабиринты власти, где жизнь, церемонии и управление переплетаются в единую целую структуру.
Сходства и различия комплексов
За внешней монументальностью дворцов Древнего мира скрывались глубокие различия в понимании власти. Сравнительный анализ их архитектуры, назначения комплексов и символов позволяет расшифровать уникальные культурные коды цивилизаций, раскрывая их представления: о выбранных техниках строительства, сакральном смысле и роли правителя.
Связь с божественным
Почти все древние цивилизации стремились символически приблизиться к божественному через архитектуру. Однако способы достижения этой цели кардинально различались, создавая уникальные архитектурные доминанты.
Зиккурат на территории ассирийского дворца // Зиккурат на территории вавилонского дворца // Обелиски Египта // Фрагмент дворца в Кноссе
Сопоставление показывает три совершенно разные модели. Так, Ассирия и Вавилон концентрировали сакральность в отдельном объекте — зиккурате, который, возносясь высоко над городом, служил лестницей между миром людей и миром богов. Египет же предполагал другой путь — через обелиски — монолитные каменные «иглы», символизирующие луч бога Ра и создавшие материальную связь между земным миром фараона и небесами. Крит реализовывал идею священной горы через многоуровневый комплекс с лестницами и переходами, где ритуальный путь был интегрирован в повседневность.
Технологии строительства
Выбор строительных материалов и инженерных решений демонстрирует, как древние зодчие адаптировались к природным условиям и доступным ресурсам, создавая архитектуру с разным функциональным назначением.
Глиняный сырковый кирпич из дворца Ашшурнацирапала II // Фрагмент ворот Иштар из глазурованного кирпича // Каменные стены с деревянными каркасами в Крите
Сравнение строительных техник демонстрирует разные подходы к монументальности и созданию оборонительных зон. Ассирия использовала глиняный кирпич как основной материал, усиливая ключевые элементы каменными ортостатами с рельефами. Вавилон усовершенствовал эту технологию, создав глазурованный кирпич, который позволял делать долговечные цветные поверхности, как на Воротах Иштар. Египет сочетал сырцовый кирпич с каменными деталями, а Крит разработал уникальную сейсмостойкую систему из рваного камня и деревянных балок.
Образ правителя
Дворцовый декор был одним из главных визуальных языков власти. Через рельефы и фрески каждая цивилизация иллюстрировала свое понимание идеального правителя.
Рельеф «Ашшурбанапал на львиной охоте» из дворца в Ниневии // Рельеф «Битва при Кадеше» в Абу-Симбеле // Рельеф с ворот Иштар // Рельеф «Царь-жрец» из Кносского дворца
Контраст между представленными образами власти раскрывает разные системы ценностей. Ассирийский царь и египетский фараон олицетворяют силу — физическое превосходство воина и божественную мощь повелителя. В отличие от них, вавилонский и критский образы показывают власть через служение богам-покровителям или выполнение ритуальных практик, где важнее духовный статус, чем военная доблесть
Скульптура и статуи
Скульптурные изображения, охранявшие дворцовые комплексы, служили не только украшением, но и выполняли важнейшие сакральные и представительские функции, отражая верования и амбиции цивилизаций.
Крылатый человекобык из Дур-Шаррукина // Вавилонский лев // Дорога Королевских празднеств в Фивах // Богиня со змеями, найденная на Крите
Анализ скульптурных образов раскрывает представления о защите и могуществе. Ассирийские шеду — крылатые быки с человеческими головами — были могущественными духами-хранителями, отгонявшими злые силы. Вавилонский лев, пожирающий человека, символизировал беспощадную мощь государства к его врагам. Египетские сфинксы с телом льва и головой фараона олицетворяли незыблемость царской власти, соединяя мудрость и могущество. В отличие от них, критские змеиные богини из дворцовых святилищ отражают более личный, домашний культ, связанный с плодородием и загробным миром.
Таким образом, главные сходства между дворцовыми комплексами проявлялись в их грандиозном масштабе и главной цели — защитить правящую элиту и символически утвердить ее власть над народом. Однако каждая цивилизация находила для этого свои уникальные формы.
Древний мир показал общие амбиции, но абсолютно разное представление о совершенной архитектуре.
Заключение
Проведенное исследование дворцовых комплексов Древнего мира выявило парадокс: при общем стремлении к монументальности и защите сакрального центра, каждая цивилизация создала уникальную архитектурную модель власти.
Ассирия явила миру искусство абсолютного доминирования — геометрию подчинения, где дворец-цитадель возвышается на город и ландшафтом благодаря своей монументальности.
Вавилон преобразовал эту традицию в синтез мощи и красоты, где оборонительные стены становятся арт-объектом, а технологическое чудо символизирует возвышение над природой.
Египет предложил принципиально иную парадигму — архитектуру сакральной оси, где дворец-храм разворачивается вдоль ритуальной линии, подчиняя пространство служению вечности.
Крит же создал удивительную альтернативу всем трем моделям — архитектуру органичного лабиринта, где власть не возвышается и не устрашает, а живет в сложном переплетении хозяйства, ритуала и повседневности.
Таким образом, дворцовая архитектура Древнего мира предстает не только как эволюция форм, но и как четыре параллельных варианта ответа на вечный вопрос о связи власти, человека и божественного. Каждая цивилизация говорила на своем уникальном архитектурном языке, но все стремились донести одну мысль: архитектура дворца — это материальное воплощение представлений об идеальной власти.
NEW LIGHT ON NIMRUD // URL: https://www.bisi.ac.uk/wp-content/uploads/new_light_nimrud.pdf (дата обращения: 19.11.2025).
Архитектура Двуречья // Totalarch. URL: https://archaic.totalarch.com/universal_history_of_architecture/mesopotamia/babylon (дата обращения: 19.11.2025).
Кавтарадзе С. Анатомия архитектуры. Семь книг о логике, форме и смысле; Нац. исслед. ун-т «Высшая школа экономики», — М.: Изд. дом Высшей школы экономики, 2018. — 4-е изд. — 472 с.
Мусатов А. А. Дворцы Минойского Крита: жилая функция и инженерное обеспечение // КиберЛенинка. URL: https://cyberleninka.ru/article/n/dvortsy-minoyskogo-krita-zhilaya-funktsiya-i-inzhenernoe-obespecheniechast-2-minoyskiy-krit-tsivilizatsiya-obognavshaya-vremya/viewer (дата обращения: 22.11.2025).
Османкина Г. Ю. Образ линии «порядка» в архитектуре Древнего Египта // КиберЛенинка. URL: https://cyberleninka.ru/article/n/obraz-linii-poryadka-v-arhitekture-drevnego-egipta-1/viewer (дата обращения: 20.11.2025).
Полуэктова Н. А. Реализация планировочных и композиционных принципов построения военного лагеря в градостроительстве Ассирии // КиберЛенинка. URL: https://cyberleninka.ru/article/n/realizatsiya-planirovochnyh-i-kompozitsionnyh-printsipov-postroeniya-voennogo-lagerya-v-gradostroitelstve-assirii/viewer (дата обращения: 19.11.2025).
Поляков Е.Н, Корж М. И. Становление фортификационного искусства в странах Древнего Востока // КиберЛенинка. URL: https://cyberleninka.ru/article/n/stanovlenie-fortifikatsionnogo-iskusstva-v-stranah-drevnego-vostoka/viewer (дата обращения: 19.11.2025).
Улетова Ю. Расцвет и гибель Минойской «Атлантиды» // Наука и жизнь. URL: https://www.nkj.ru/open/47692/ (дата обращения: 21.11.2025).
https://pin.it/7FmR352WN (дата обращения: 24.11.2025).
https://www.arhitekto.ru/txt/2razv94.shtml (дата обращения: 19.11.2025).
https://commons.wikimedia.org/wiki/File:Reconstructed_Model_of_Palace_of_Sargon_at_Khosrabad_1905.jpg (дата обращения: 19.11.2025).
https://archisto.info/ashshur.html (дата обращения: 19.11.2025).
https://archisto.info/ashshur.html (дата обращения: 19.11.2025).
https://www.learningsites.com/Barsib/Til-Barsib_Palace.php (дата обращения: 19.11.2025).
https://www.learningsites.com/Barsib/Til-Barsib_Palace.php (дата обращения: 19.11.2025).
https://history.ru/read/articles/kultura-assirii (дата обращения: 20.11.2025).
https://archisto.info/new-vavilon.html (дата обращения: 20.11.2025).
https://archisto.info/dvorec-navuhodonosora.html (дата обращения: 20.11.2025).
https://archisto.info/new-vavilon.html (дата обращения: 20.11.2025).
https://archaic.totalarch.com/universal_history_of_architecture/mesopotamia/babylon (дата обращения: 20.11.2025).
https://www.tart-aria.info/wp-content/uploads/2019/01/i_mar_a/vavilon-2-4.jpg (дата обращения: 20.11.2025).
https://kannelura.ru/dr/345_01.jpg (дата обращения: 20.11.2025).
https://upload.wikimedia.org/wikipedia/commons/4/48/Ogrody_semiramidy.jpg (дата обращения: 20.11.2025).
https://pin.it/3qqOWJDmG (дата обращения: 20.11.2025).
https://pin.it/4eZ8y0FMC (дата обращения: 20.11.2025).
https://perito.media/posts/saddam-babylon (дата обращения: 20.11.2025).
https://upload.wikimedia.org/wikipedia/commons/a/a4/Ruins_of_Babylon%2C_Mesopotamia%2C_Iraq.jpg (дата обращения: 20.11.2025).
https://sun9-25.userapi.com/impg/OR-seVUTe9MjoO0BSDWVCVbC2S_prU-BES5_QQ/I9VSh8qQvEU.jpg?size=1024x476&quality=95&sign=a448695bf502e0cfd88206e1bb3896ac&type=album (дата обращения: 20.11.2025).
https://cs11.pikabu.ru/post_img/2020/04/21/6/1587457402183262475.jpg (дата обращения: 20.11.2025).
https://cs9.pikabu.ru/post_img/2020/04/21/6/1587457408110631743.jpg (дата обращения: 20.11.2025).
https://resize.tripster.ru/c_CjCWslc2v3css_vupjtELL0yY=/fit-in/1200x1000/filters:no_upscale()/https://cdn.tripster.ru/photos/63107eae-7ae4-4e8a-b0d8-8f61948b76d7.jpg (дата обращения: 20.11.2025).
https://sun9-14.userapi.com/impg/2hBWDQ86D-gmIrEhR-EhIWn4r7mWor10xSoP4g/_elJKrfFdrM.jpg?size=1280x853&quality=95&sign=bf066965183920148a214a104402cedd&type=album (дата обращения: 21.11.2025).
https://turizm.world/xramovyj-kompleks-v-karnake.html (дата обращения: 21.11.2025).
https://kannelura.ru/dr/hits_74_03_ico.jpg (дата обращения: 21.11.2025).
https://pin.it/1aH43bdG8 (дата обращения: 21.11.2025).
https://pin.it/2ZJQRNcYO (дата обращения: 21.11.2025).
https://idei.club/raznoe/uploads/posts/2022-12/thumbs/1671785645_idei-club-p-dvorets-akhetatona-dizain-krasivo-2.jpg (дата обращения: 21.11.2025).
https://archisto.info/images/tom-1-39-ris74b.jpg (дата обращения: 21.11.2025).
https://ic.pics.livejournal.com/dergachev_va/58474394/838189/838189_original.jpg (дата обращения: 21.11.2025).
https://upload.wikimedia.org/wikipedia/commons/thumb/b/bc/Luxor-Tempel_Pylon_08.jpg/2560px-Luxor-Tempel_Pylon_08.jpg (дата обращения: 21.11.2025).
https://kulturologia.ru/files/u18214/AmenhotepIII8.jpg (дата обращения: 22.11.2025).
https://upload.wikimedia.org/wikipedia/commons/1/14/Luxor-Court_of_Amenhotep_III.jpg (дата обращения: 22.11.2025).
https://archisto.info/images/tom-1-39-ris76b.jpg (дата обращения: 22.11.2025).
https://kannelura.ru/dr/424_01_ico.jpg (дата обращения: 22.11.2025).
https://levelvan.ru/upload/media/n-1001460752197-7496.jpg (дата обращения: 22.11.2025).
https://travelblog.lv/wp-content/uploads/2025/08/f7ecb73c4173004acde188b4b3acfbd8-1536x970.jpg (дата обращения: 22.11.2025).
https://media-cdn.tripadvisor.com/media/attractions-splice-spp-674x446/10/3d/6a/8a.jpg (дата обращения: 22.11.2025).
https://archisto.info/images/tom-1-163-ris-12a.jpg (дата обращения: 22.11.2025).
https://archisto.info/images/tom-1-163-ris-12b.jpg (дата обращения: 22.11.2025).
https://www.kritguide.ru/_ld/0/s39927291.jpg (дата обращения: 22.11.2025).
https://www.kritguide.ru/_ld/0/21715657.jpg (дата обращения: 23.11.2025).
https://fs.tonkosti.ru/sized/f960x960/5q/18/5q18fqosxxoossksk8gw48wkk.jpg (дата обращения: 23.11.2025).
https://turskidki.ru/media/attractiondata/92/92img0.jpg (дата обращения: 23.11.2025).
https://archisto.info/images/tom-1-163-ris-11.jpg (дата обращения: 23.11.2025).
https://upload.wikimedia.org/wikipedia/commons/2/2f/MaliaPalace.JPG (дата обращения: 23.11.2025).
https://turskidki.ru/tn_450x300___cc_ffffff_0/attraction/item/1000/87/87.jpg (дата обращения: 23.11.2025).
https://tocrete.com/images/stories/HERAKLION/sights/Malia_palace/Malia_palace_010.jpg (дата обращения: 23.11.2025).
https://dynamic-media-cdn.tripadvisor.com/media/photo-o/1d/ec/76/fe/palac.jpg?w=1400&h=-1&s=1 (дата обращения: 23.11.2025).
https://upload.wikimedia.org/wikipedia/commons/f/ff/Sargon_II_palace_in_Dur-Sharrukin.png (дата обращения: 23.11.2025).
https://archisto.info/images/tom-1-196-ris-28a.jpg (дата обращения: 23.11.2025).
https://pin.it/4r1tPd4Ok (дата обращения: 23.11.2025).
https://kannelura.ru/dr/424_07.jpg (дата обращения: 24.11.2025).
https://storage.myseldon.com/news-pict-5c/5C82BE08BF2EC0B02D2F25010DF08673 (дата обращения: 24.11.2025).
http://www.piligrim.lv/wp-content/uploads/2018/01/1A8.jpg (дата обращения: 24.11.2025).
https://brick-library.ru/wp-content/uploads/2020/05/Luksor3624-1-768x512.jpg (дата обращения: 24.11.2025).
https://dynamic-media-cdn.tripadvisor.com/media/photo-o/0c/09/9e/de/photo1jpg.jpg?w=2000&h=-1&s=1 (дата обращения: 24.11.2025).
https://upload.wikimedia.org/wikipedia/commons/9/99/Lion_Hunt_of_Ashurbanipal_-_king_riding_killing_lion.jpg (дата обращения: 24.11.2025).
https://upload.wikimedia.org/wikipedia/commons/1/1b/Egypt_Abou_Simbel6.jpg (дата обращения: 24.11.2025).
https://tr.pinterest.com/pin/ancestral-arabia-assyrian-culture-at-the-metropolitan-museum-of-art--430023464406391034/ (дата обращения: 24.11.2025).
https://upload.wikimedia.org/wikipedia/commons/8/8e/Knossos_frise2.JPG (дата обращения: 24.11.2025).
https://upload.wikimedia.org/wikipedia/commons/d/d5/Lammasu.jpg (дата обращения: 24.11.2025).
https://pbs.twimg.com/media/DQdeCLuUEAApzeD.jpg (дата обращения: 24.11.2025).
https://avatars.dzeninfra.ru/get-zen_doc/271828/pub_68bec4386b7d9251b4eef2ac_68bec5ae8ccd7573093f1be9/scale_1200 (дата обращения: 24.11.2025).
https://ic.pics.livejournal.com/mazayka_urza/77201033/168198/168198_600.jpg (дата обращения: 24.11.2025).