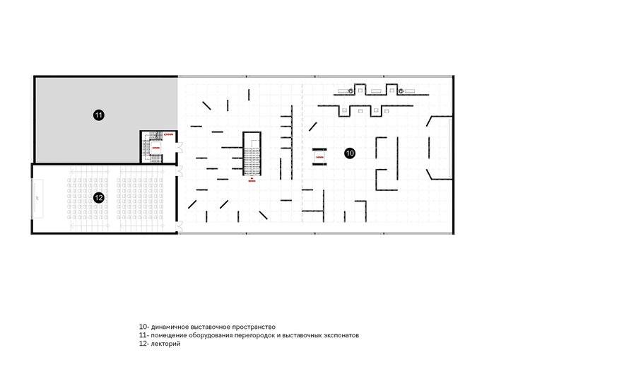
Концепция: Во главе пространства стоит динамика. Добивается она за счет подвижных перегородок, позволяющих менять пространство под каждую выставку и каждый раз удивлять посетителей.

Исходный размер 2048x1136

Исходный размер 2000x2000


Исходный размер 2500x2500
Исходный размер 3000x1200
Исходный размер 3000x1200
Исходный размер 3000x1200

















