
ВВЕДЕНИЕ
В наши дни становится действительно значимым сохранение индустриального наследия как важной части культурной идентичности города и страны. Промышленная архитектура ХХ века — не только свидетельство технологического прогресса, но и пространство коллективной памяти, воплощение социальных идей и инженерных достижений эпохи.
Хлебозавод № 8 в районе Преображенское (Большая Черкизовская улица, 32Бс1) — уникальный памятник конструктивизма и советской индустриальной инженерии. Построенный в 1933 году по проекту инженера Георгия Марсакова, он представляет собой редкий пример кольцевой конвейерной технологии хлебопечения, не имевшей аналогов в мировой практике. Цилиндрическая форма главного корпуса завода — не декоративное решение, а прямое архитектурное воплощение технологического процесса: каждый этаж соответствовал определённой стадии производства — от подготовки опары до выпуска готовой продукции.
Параллельно с задачей сохранения индустриального наследия актуальным является вопрос культурной интеграции и сохранения нематериального культурного наследия многонациональной России. В стране проживает более 190 народов, каждый из которых обладает уникальными кулинарными традициями, в центре которых стоит хлеб — универсальный символ жизни, гостеприимства, достатка и единства. Хлеб на Руси всегда был не просто продуктом питания, но культурным феноменом, связывающим поколения, традиции и регионы.

СОДЕРЖАНИЕ ПРЕДПРОЕКТНОГО АНАЛИЗА:
1. ДУХ МЕСТА:
- Историческая справка
- Архитектура как технология и архетип: кольцо Марсакова
- Хлебопекарные традиции народов России
2. ДУХ ВРЕМЕНИ:
- Градостроительный анализ
- Позиция местных жителей и власти
3. ПРОТОТИПЫ:
- Хлебозаводы Марсакова
- Мировой опыт
4. ВЫВОДЫ и ТЗ + ИСТОЧНИКИ
ГИПОТЕЗА:
Создание на базе Хлебозавода № 8 многофункционального Центра хлебопекарного наследия народов России, сочетающего функции действующего производства, культурно-просветительского кластера и общественного пространства с целью сохранения архитектурной и историко-культурной ценности объекта.
ОБЪЕКТ ИССЛЕДОВАНИЯ:

Хлебозавод № 8 (Хлебозавод «Черкизово»), расположенный по адресу: Москва, Большая Черкизовская улица, 32Бс1 (координаты: 55.794217, 37.740565), район Преображенское, Восточный административный округ.
ПРЕДМЕТ ИССЛЕДОВАНИЯ:
Архитектурно-градостроительные, историко-культурные, социально-функциональные и технологические аспекты реновации промышленного объекта индустриального наследия с целью создания многофункционального центра, сочетающего производственную, культурно-просветительскую и общественную функции, с акцентом на сохранение и популяризацию хлебопекарных традиций народов России.
ДУХ МЕСТА
В апреле 1933 года в строй действующих предприятий вступил один из первых и крупнейших советских хлебозаводов, спроектированных по уникальной кольцевой конвейерной технологии инженера Марсакова — хлебозавод № 8. Изначальная специализация производства — ржаной хлеб.
Хлебозавод № 8 имени Горького — название, которое носило предприятие в 1930-е — 1980-е годы, а после был переименован в «Черкизово».
В 1961 году была проведена значительная реконструкция завода с расширением складских площадей бестарного хранения муки и запуском цеха по производству мелкоштучного сдобно-булочного ассортимента.
Разрез здания хлебозавода
2000-е –2010-е годы — завод оставался одним из ключевых производителей хлеба в Москве, обеспечивая около 7% столичного рынка.
В период с 1990-х по начало 2000-х годов директором предприятия был Николай Зернов, которому принадлежала 20% доля в акционерном капитале. Его сын Евгений Зернов владел примерно 7% акций и в 2006 году, уже в качестве директора, провел переговоры о продаже завода компании «Настюша» Игоря Пинкевича. К 2007 году предприятие вошло в состав этого холдинга.
План полуподвала
В 2018 году работа завода была приостановлена из-за серьезных финансовых трудностей владеющей компании. Задолженность по заработной плате перед сотрудниками достигла 4 месяцев, что побудило 50 работников объявить голодовку. Данная ситуация получила широкий резонанс, было возбуждено уголовное дело, а директор Ян Соловьёв — задержан. При содействии Правительства Москвы было принято решение о передаче предприятия под управление компании «Черёмушки».
В 2023 году на аукционе предприятие приобретено Борисом Грабчинским, совладельцем компании «Оптиком», за 342 млн. рублей.
АРХИТЕКТУРА КАК ТЕХНОЛОГИЯ И АРХЕТИП: КОЛЬЦО МАРСАКОВА
«Впервые в мире начали работать заводы-машины. И Москва стала первым в мире городом целиком механизированного хлебопечения.» (Гальперн К.Л. «Идеи и дела инженера Марсакова» 1933).

Георгий Петрович Марсаков (1886–1963) — новатор советской инженерной мысли, выросший в семье владельца кузницы в Оренбургской области. После блестящего окончания Томского технологического института он получил два диплома: по силовым установкам и холодильному делу, быстро сделал карьеру на крупных промышленных предприятиях, где прошёл путь от прораба до заместителя главного инженера. В годы Гражданской войны отвечал за восстановление разрушенных сетей, запуск холодильников, проектирование мясокомбинатов и располагал огромным техническим кругозором.
В 1920-х годах Георгий Марсаков работал в обществе «Мельстрой» и «Электрохлеб», подробно изучая опыт западных хлебозаводов и немецкое оборудование, а именно машины фирмы «Werner & Pfleiderer», критически анализируя его слабые стороны из-за высокой доли ручного труда и неэффективной линейной организации. Уже на первом крупном заводе в Царицыне Марсаков вводит собственные печи и механизмы, затем совершенствует идею производственного потока, вдохновлённый конвейерами завода Форда, но стремясь устранить возвратные холостые перемещения деж, материалов и персонала.
Запатентованные машины Пауля Пфлейдерера, 1875 год.
Главное изобретение Марсакова — идея кольцевого конвейера.
Георгий Марсаков предложил организовать хлебозавод как компактную вертикальную машину-автомат: тесто постепенно спускается сверху вниз через полный цикл — от просеивания и замеса до формовки, расстойки, выпечки и упаковки — проходя все этапы по строго замкнутому кольцу без возвратов и пересечений потоков. Такое решение позволило максимально механизировать и автоматизировать весь процесс хлебопечения, резко сократить площади и трудозатраты, повысить гигиену производства и обеспечить непрерывность выпуска хлеба высочайшего качества.
Схема прямого поточного производства хлеба на американском заводе. Разнообразные средства транспорта определяют эту сложную систему прямолинейно-возвратных движений.
«Я высоко ставлю изобретение Марсакова. Совершенно верно. Это очень серьезное изобретение, технически вполне проработанное. Ему предстоит большое распространение при умелой реализации. Высказываю это суждение, имея сорокалетний стаж по делам изобретений, по истории и философии техники» (П. К. Энгельмейер, «Отзыв на заключение экспертов»).
Устройство хлебозавода Марсакова
По технологии Марсакова в Москве построено пять хлебозаводов:
1. Хлебозавод № 5 имени Зотова, ул. Ходынская, 2, 1931 год — сейчас культурный центр «Центр Зотов».
2. Хлебозавод № 7 («Москворечье»), 2-й Павелецкий проезд, 7, 1932 год — снесен осенью 2024 года.
3. Хлебозавод № 8 имени Горького («Черкизово»), ул. Большая Черкизовская, 32б, 1932–1933 год — находится под угрозой сноса.
4. Хлебозавод № 9 имени 17-го партсъезда, Новодмитровская ул., 1, стр. 1, 1933 год — сейчас культурный центр «Хлебозавод № 9».
5. Хлебозавод № 11 имени Микояна («Звёздный»), Звёздный бульвар, 23 ст3, 1992 год — продолжает свою деятельность.
Расположение пяти хлебозаводов Москвы
И два хлебозавода в Санкт-Петербугре (Ленинграде):
1. Левашовский хлебозавод, Барочная ул., 4А, Санкт-Петербург, 1930–1933 годы — сейчас культурный центр.
2. Кушелевский хлебозавод, Политехническая улица, 11И., 1932–1933 годы — сейчас памятник архитектуры.
Расположение хлебозаводов Санкт-Петербурга
Благодаря инженерной логике планировки и архитектуры хлебозаводов: форма здания и вертикальная структура были полностью подчинены технологической цепочке кольцевого конвейера. Несмотря на сопротивление чиновников и технологов, получив поддержку ведущих архитекторов и некоторых научных деятелей, Марсаков довёл свои идеи до практической реализации и был награждён высшими государственными наградами СССР.
Марсаков — создатель советской школы комплексной индустриализации хлебопечения. Его система кольцевого потока на автоматизированном заводе позволила выпускать хлеб массового потребления быстро, экономно и с высочайшей стабильностью качества; его организация пространства вдохновляет современных архитекторов на ревитализацию.
ХЛЕБОПЕКАРНЫЕ ТРАДИЦИИ НАРОДОВ РОССИИ
Хлеб — один из древнейших продуктов питания, сопровождающий человека на протяжении более восьми тысячелетий. Однако хлеб является не просто продуктом питания, но символом жизни, единства, культуры и благосостояния, объединяющим народы через общие ценности труда, гостеприимства, изобилия и духовного насыщения.
В традиционной культуре народов России хлеб считался наиболее сакральным видом пищи, символизирующим достаток, материальное благополучие и божественное покровительство. Русская пословица «Хлеб — всему голова» отражает его центральное место в мировоззрении и быту.
СЛАВЯНСКИЕ ТРАДИЦИИ
У русских ржаной (чёрный) хлеб был основой питания и символом народной идентичности: «Гречневая каша — матушка наша, а хлебец ржаной — отец наш родной». Белый хлеб (ситный, калач) считался более праздничным и дорогим: «Калач приестся, а хлеб никогда».
Каравай — обрядовый круглый пышный хлеб, символизирующий солнце, — готовился на свадьбы, праздники, встречу гостей.
Украинская паляница и арнауты — круглый и продолговатый пшеничный хлеб — также занимали центральное место на праздничном столе.
Прибалтийские народы (эстонцы, латыши, литовцы) создали уникальные сорта ржаного хлеба с добавлением солода, патоки и кисломолочных продуктов: тартуский, рижский, каунасский хлеб. Эти сорта отличаются кисло-сладким вкусом и долгим сроком хранения.
ТЮРКСКИЕ ТРАДИЦИИ (Поволжье, Урал)
У татар и башкир хлеб икмәк и кабартма выпекались из пшеничной или смешанной муки, часто жарились на масле. Хлеб был неотъемлемой частью праздничного стола, особенно на Сабантуе и Курбан-байраме.
Казахские лепешки дамды-нан, токаш, жай-нан — круглые пшеничные лепешки из дрожжевого теста — готовились в печи или на открытом огне.
КАВКАЗСКИЕ ТРАДИЦИИ
Армянский лаваш — один из древнейших видов хлеба, тонкие листы пресного теста, выпекаемые в тандыре. Лаваш может храниться долго и восстанавливаться при сбрызгивании водой, что делало его незаменимым в условиях горного климата. Лаваш — символ армянской культурной идентичности, внесённый в список нематериального культурного наследия ЮНЕСКО.
Матнакаш — толстая овальная дрожжевая лепешка с крупнопористым мякишем и характерными продольными линиями — едят только свежим, он символизирует гостеприимство и тепло дома.
Грузинский шоти — продолговатый хлеб в форме лодочки с хрустящей корочкой, выпекаемый в тандыре, — обязательный элемент грузинского застолья.
Азербайджанский чурек и тендир чорей — круглые дрожжевые лепешки, выпекаемые в тандыре, ломают руками, не режут ножом.
Дагестанский шткар фу и разнообразные лепешки (более 50 рецептов) — на воде, сыворотке, айране, молоке — демонстрируют богатство хлебопекарных традиций горских народов.
СРЕДНЕАЗИАТСКИЕ ТРАДИЦИИ
Узбекский Оби Нон и патыр — круглые лепешки с толстыми краями и тонким центром, часто слоёные, выпекаемые в тандыре, — символизируют изобилие и солнце. Узбекская лепешка украшена орнаментом, создаваемым специальным штампом (чекич).
Хлеб объединяет народы России через общий архетип, проявляясь в разных формах, но сохраняя единую символическую суть. Это делает хлеб универсальным культурным кодом, понятным каждому независимо от национальности, языка и вероисповедания.
ДУХ ВРЕМЕНИ
ГРАДОСТРОИТЕЛЬНЫЙ АНАЛИЗ
МЕСТОПОЛОЖЕНИЕ ОБЪЕКТА
Местоположение объекта
Объект находится в Восточном административном округе (ВАО) города Москвы в историческом районе Преображенское на улице Большая Черкизовская, 32Бс1.
Местоположение объекта
Хлебозавод № 8 находится практически на границе двух жилых районов с высокой численностью населения — Преображенского (около 88 тыс. жителей) и соседствующего с ним Соколиной горы (около 93 тыс. жителей). Это соседство двух густонаселенных районов создаёт потенциальную базу для развития культурного-образовательного и производственного центра: суммарная численность близлежащего населения составляет около 180 тыс. человек.
Местоположение объекта
ИНСОЛЯЦИЯ: АРХИТЕКТУРНОЕ ПРЕИМУЩЕСТВО ЦИЛИНДРИЧЕСКОЙ ФОРМЫ
В отличие от прямоугольного здания, которое получает максимальную освещенность только на южном фасаде (и частично на восточном/западном), цилиндрическое здание обеспечивает непрерывное получение солнечного света на протяжении всего светового дня. Солнце последовательно освещает весь периметр цилиндра по мере его дневного движения.
Схема инсоляции здания в зимний и в летний период
Так, в зимний период (декабрь–февраль) световой день длится 7–9 часов, где 7 часов — это минимум, который бывает в конце декабря. А в летний период (июнь–август) световой день значительно длиннее, к концу июня достигает 17-18 часов.
Форма Хлебозавода № 8 обеспечивает инсоляцию большинства внутренних пространств в течение 4–6 часов в день в тёплый период и 2-4 часа в холодный. Преимущество цилиндрической формы заключается в возможности гибкого функционального зонирования в соответствии с особенностями инсоляции каждой зоны здания.
ТРАНСПОРТНАЯ ДОСТУПНОСТЬ
Хлебозавод № 8 находится на расстоянии 9-15 минут ходьбы (750–950 метров) от крупнейшего в Москве транспортно-пересадочного узла «Черкизово», интегрирующего три вида общественного транспорта:
1. Метро — станция «Черкизовская».
2. МЦК «Локомотив» — Историческая станция Окружной железной дороги (1908), восстановленная для пассажирского движения.
3. Восточный вокзал (открыт 29 мая 2021 года) с поездами дальнего следования.
Кроме того, внутри ТПУ находится множество автобусных остановок.
Схема расположения транспортно-пересадочных узлов (ТПУ)
Уникальное преимущество Восточного вокзала — возможность привлечения межрегиональных и международных туристов. Люди, приезжающие по железной дороге в Москву, оказываются именно на Восточном вокзале.
Схема расположения отелей и гостиниц
Кроме того, вблизи здания хлебозавода сконцентрировано большое количество отелей и гостиниц, что обеспечивает значительный поток туристов.
Пассажиропоток станций Московского метро (сумма на вход и выход в сутки)
Суммарный пассажиропоток трёх видов транспорта составляет десятки тысяч человек ежедневно, что создаёт значительный контингент потенциальных посетителей, в том числе туристов из разных регионов России.
Схема транспортной доступности
Развитая сеть наземного транспорта обслуживает локальную доступность для жителей соседних жилых районов и микрорайонов. Автобусные остановки находятся в шаговой доступности (в радиусе 500 метров) от здания хлебозавода.
Схема функционального назначения городского окружения
Окружение Хлебозавода № 8 представляет собой функционально смешанный район, который делится на:
1. Жилые зоны — преобладающий тип землепользования.
2. Деловой район — офисные центры и торговые площади, концентрирующиеся вдоль магистралей.
3. Промышленные зоны (складские комплексы, гаражи, производственные цеха).
4. Объекты здравоохранения.
и др.
Схема расположения парковок
Важно отдельно показать парковочные зоны района, в том числе находящиеся в радиусе 500 метров от здания хлебозавода.
ПОЗИЦИЯ МЕСТНЫХ ЖИТЕЛЕЙ И ВЛАСТИ
В 2024 году Хлебозавод № 8 стал объектом острого общественного дискурса в районе Преображенское. После скандального закрытия завода в 2018 году и приобретения территории компанией «Оптиком» (2023 год) встал вопрос о судьбе исторического здания, памятника советского конструктивизма: снос (с дальнейшем приспособлением территории под очередной жилой комплекс) или сохранение (с приспособлением здания под общественные нужды).
В высказываниях местной жительницы присутствует активное сопротивление проектам редевелопмента, которые предполагают полный снос исторических структур.
Также жители видят потенциал площадки не как объекта для жилищного редевелопмента, а как локальной спортивно-рекреационной зоны, обслуживающей нужды района.
Представитель муниципального управления Светлана Кобзарь так же подчеркивает ценность хлебозавода, как памятника советской архитектуры, она демонстрирует недостаточно подробное, но честное желание сохранить объект и приспособить его под нужды района.
Так, местные жители готовы поддержать сохранение здания при условии, что оно будет сопровождаться адаптивным повторным использованием, которое создаст функциональное пространство, полезное для района (например, как в случае с Центром Зотов или дизайн-заводом Флакон в Москве).
ПРОМЕЖУТОЧНЫЕ ВЫВОДЫ:
- Во-первых объект имеет выгодное градостроительное положение. Он расположен в зоне ТПУ (которая находится в шаговой доступности от хлебозавода), что обеспечивает ежедневный пассажиропоток в десятки тысяч человек и потенциал для привлечения межрегиональных туристов через Восточных вокзал. Кроме того, наличие гостиничной инфраструктуры также формирует готовый поток туристов.
- Во-вторых, суммарная аудитория 180 000 жителей двух соседних районов создает критическую массу для поддержки культурно-производственного кластера. Также, функциональный анализ окружения выявляет дефицит общественных пространств при доминировании жилой застройки.
- В-третьих, само здание хлебозавода имеет архитектурно-планировочные преимущества. Цилиндрическая форма обеспечивает оптимальную инсоляцию в течение всего дня, гибкие возможности для функционального зонирования, а также естественную организацию «кольцевого» маршрута для посетителей
- В-четвертых, местные жители и муниципальная власть выступают за сохранение памятника конструктивизма, существует запрос на адаптивное использование под общественные нужды, а также прослеживается отторжение типовой жилой застройки в пользу создания уникального общественного пространства.
ПРОТОТИПЫ
ХЛЕБОЗАВОДЫ МАРСАКОВА
ЦЕНТР ЗОТОВ
Ходынская ул., 2, стр. 1, Москва (ЖК Пресня Сити)
Центр изучения конструктивизма «Зотов» (Хлебозавод № 5) Фотография Ильи Иванова
Хлебозавод № 5, позже названный в честь наркома пищевой промышленности Василия Зотова, был пущен в 1931 году и стал первым в серии из пяти московских хлебозаводов, построенных по технологии инженера Марсакова. Проработал завод до 2006 года, а в 2018 году банк ВТБ выкупил здание и инициировал создание на его месте центра конструктивизма — проекта, направленного на сохранение наследия авангарда.
Архитектурное бюро СПИЧ
Автором проекта реконструкции выступило архитектурное бюро «СПИЧ» под руководством Сергея Чобана. Ключевой идеей стал принцип «сохранения всех наслоений». В отличие от реконструкции здания под идеальный вид, архитекторы решили честно сохранить следы эпох и эксплуатации.


Фотографии Дмитрия Чебаненко
В интерьере демонстрируются подлинные элементы, такие как стены, неотделанные потолки, а также открыто внедряются элементы современных конструкций, которые не маскируются, а, напротив, выведены в виде «инженерного органа» из металлических труб в центральном пространстве цилиндрического корпуса.


Фотографии Дмитрия Чебаненко
Бывшее промышленное здание хлебозавода было успешно преобразовано в многофункциональный культурный кластер «Зотов», который имеет такое поэтажное зонирование:
- Первый этаж — открытое общественное пространство с кафе и ресепшеном, предназначенное для свободного посещения.
- Второй и третий этажи- выставочные залы, оснащенные системами климат-контроля и блэкаутами на окнах, что позволяет экспонировать произведения искусства любого уровня.
- Четвертый этаж — лекторий и два кинозала, программа которых включает как архивное авангардное кино, так и новинки проката.
В прямоугольной пристройке к зданию находится администрация.
Разрез 1-1
План подвала
Дизайн-код строится на диалоге эпох. Исторические материалы — голый кирпич, бетонный потолок, старая советская плитка соседствуют с современными материалами. Это подчеркивает промышленное прошлое и придает пространству актуальную эстетику.
Фотография Дмитрия Чебаненко
Так, «Центр Зотов» является успешным опытом приспособления промышленного здания под многофункциональный кластер, который в себя включает гастрономию, образование и рекреацию, а также подчеркивает ценность сохранения и приспособления под современность памятников промышленной архитектуры.
ХЛЕБОЗАВОД № 9
Новодмитровская ул., 1, стр. 1, Москва
Хлебозавода № 9 — это еще один из кольцевых хлебозаводов, построенных по технологии инженера Марсакова в 1934 году. Он также служит эталонным примером успешной адаптации объекта индустриального наследия под запросы современного города. Проект демонстрирует возможность памятника конструктивизма не просто сохранить свой первоначальный облик, но и стать активной точкой притяжения, совмещающей коммерцию, культуру и общественные функции.
Архитектурная мастерская Сергей Киселев и партнеры
Архитектурная мастерская Сергея Киселева и партнеров подошли к реконструкции с глубоким уважением к исторической ценности здания и одновременным внедрением современных элементов.
Территория завода была преобразована в многослойный кластер:
- Коворкинг и офисы — пространства для креативных индустрий и бизнеса.
- Розничная торговля и гастрономия — магазины локальных брендов, кафе и рестораны, часто с террасами.
- Культурно-образовательные функции — площадки для проведения лекций, мастер-классов и выставок.
- Событийные площадки- внутренние дворы и крыши используются для фестивалей, маркетов и кинопоказов.


Архитектурная мастерская Сергей Киселев и партнеры
Успех кластера обеспечивается взаимодополняемостью различных функций (работа, торговля, культура и отдых), что гарантирует постоянный поток людей в разное время суток.
Кроме того, тактичное, но уверенное внедрение современной архитектуры в исторический контекст рождает динамичный и актуальный образ, который привлекает новую аудиторию.
ЛЕВАШОВСКИЙ ХЛЕБОЗАВОД
Барочная ул., 4А, Санкт-Петербург


Слева: фотография Алены Кузнецовой Справа: фотография pr-бюро vesnaskoro
Третьим заключительным зданием бывшего кольцевого хлебозавода приспособленного под современные общественные нужны является Левашовский хлебозавод в Санкт-Петербурге. Здание было построено в 1931–1933 годах, а с 2018 года началась реализация реконструкции девелоперской компанией RBI.
Ротонда
Исходное состояние здания было практически аварийным, потребовалось усилить или полностью заменить около 100% несущих конструкций. Архитекторы восстановили исторические фасады, лестничные ограждения и напольную плитку. Была расчищена и укреплена кирпичная кладка в бывшей котельной, которая была сердцем завода, а также сохранена знаковая кирпичная труба — важная деталь силуэта здания.


Проект представляет собой успешную модель смешанного использования, где культурные функции сосуществуют с коммерческими:
- На месте основного цилиндрического здания хлебозавода («ротонды»), где находилось непосредственно все производство группа КИШ разместила экспозицию, посвященную строительству и самому архитектору хлебозавода.
- «Творческая котельная» — сердце нового культурного центра. Место, где раньше раскалялись печи для выпечки хлеба, превратилось в эпицентр культурной жизни города, где проходят выставки, спектакли, деловые и научные конференции.
Кроме того, бывшее промышленное здание вместило в себя также зону кофоркинга и кафе, архитектурную школу MASTERS и офисные помещения.


Фотографии pr-бюро vesnaskoro
МИРОВОЙ ОПЫТ
MazelTov
Будапешт, Венгрия
Фотография Даниэля Дёмёльки
MazelTov был создан в историческом здании Будапешта архитектурными студиями: 81 font и Studio Arkitekter, в районе, который исторически был центром ортодоксальной еврейской общины, но позднее превратился в район «руин-пабов».


Фотографии Даниэля Дёмёльки
«Во время Второй мировой войны на месте района было гетто, поэтому его историческое наследие давит грузом на тяжёлые каменные стены». Проект стал попыткой вернуть к жизни этот уникальный исторический контекст через гастрономию и культуру.
Ключевая идея создателей заключалась в том, чтобы создать «уютное общественное пространство, спроектированное надолго», которое бы оживило городской двор и стало альтернативой распространившимся в районе «руин-пабам».
Общий план
MazelTov позиционируется как gastro-cultural venue (гастро-культурное пространство), которое через кухню и атмосферу ведет культурный диалог.
В интерьере доминируют тактильные и натуральные материалы. Длинная стойка бара выполнена из дуба, а ее фронтальная часть отделана винтажными цементными плитками в марокканском стиле, напоминающими о застройке Будапешта рубежа веков. Кроме того, атмосферу буржуазного прошлого поддерживает мебель — например, белые кондитерские стулья, «унаследованные» из 1930-х годов.


Фотографии Даниэля Дёмёльки
Centro Gastronómico de Oaxaca
Оахака, Мексика
Фотография Лизет Ортис
Проект, реализованный архитектурным бюро RootStudio, заключался в преобразовании бывшего монастыря Кармен-эль-Альто (Ex-convento del Carmen el Alto) в городе Оахака в гастрономический центр. Здание монастыря, основанное в XVI веке, успело побывать гражданским реестром и складом, прежде чем было тщательно отреставрировано для финальной функции.
План первого этажа
Ключевой идеей стало создание пространства, где прошлое, настоящее и будущее гастрономической культуры Оахаки сходятся воедино. Архитекторы видели своей задачей не только сохранение архитектурного наследия, но и оживление традиций местной кухни. Этот подход показывает, как исторический контекст может быть не просто сохранен, но и стать основой для актуального образовательного и культурного центра.


Фотографии Лизет Ортис
В то время как основное здание монастыря было бережно отреставрировано с использованием традиционных материалов, в его пространство были внедрены современные элементы. Наиболее ярким примером является объем из натуральной стали, приподнятый над землей, в котором разместились промышленные кухни.
Разрез G-G


Фотографии Лизет Ортис
Сады и внутренние дворы монастыря были восстановлены и превращены в зоны для мероприятий на открытом воздухе. В озеленении использовались растения, традиционно связанные с местной кухней, такие как юкка, гуаява и агава.


Фотографии Лизет Ортис
PONG — pop culture & gastronomy
Штутгарт, Германия
Проект «PONG — pop culture & gastronomy» в Дюссельдорфе представляет собой выдающийся пример ревитализации исторического здания под новую гастрономическую и культурную функцию. Проект реализован архитектурной студией Studio Komo и дизайнером интерьера Isabell Ehring в архитектурном центре старого здания 1920-х годов.
Общий план
Ключевой идеей проекта является уникальное сочетание гастрономии и современной поп-культуры в стенах объекта культурного наследия. «PONG» является многофункциональным общественным пространством, где проводятся концерты с участием международных артистов и тематические вечеринки.


Проект удачно интегрирован в строгое здание 1920-х годов, находящееся в сердце Музея поп-культуры (NRW-Forum). Работа с пространством была направлена на создание «атмосферной творческой обстановки», которая способствует неформальному общению и культурному обмену. Кроме того, в пространстве организовано гибкое зонирование, позволяющее площадке трансформироваться в зависимости от события.


Bakery Chlieb Náš
Тренчин, Словакия
Ключевой идеей проекта пекарни «Chlieb Náš», созданного архитектурным бюро Sadovsky & Architects, является гармоничное соединение традиционного ремесла с инновационными технологиями. Основная цель заведения — производство хлеба как продукта повседневного спроса с использованием традиционной закваски, но с применением современных промышленных процессов.


Фотографии Матейя Хакара
Проект демонстрирует осмысленный подход к организации компактного пространства. Так, узкое пространство пекарни разделено на зону кофейни и производства при помощи многофункционального мебельного элемента. Этот элемент работает как «воображаемые ворота», которые визуально соединяют посетителя с процессом выпечки, создавая эффект прозрачности и доверия.
Кроме того Главную ось пространства подчеркивает линейное освещение, которое организует и направляет движение взгляда. Важную смысловую нагрузку несет круговое зеркало, доминирующее на потолке и отсылающее к сакральному мотиву, заложенному в названии пекарни («хлеб наш насущный»).
Фотографии Матейя Хакара
May café & bakery
Ниньбинь, Вьетнам
Фотография Триу Кьена
Проект «May Café & Bakery» во Вьетнаме представляет собой интересный пример реконструкции, где архитекторы команды FeA бережно объединили различные по стилю постройки в целостное пространство.


Фотографии Триу Кьена
Архитекторы бюро FeA необходимо было объединить уличное кафе и часть свадебного центра, выполненного в неоклассическом стиле. Важным ограничивающим фактором выступил скромный бюджет, а также пожелание заказчика сохранить часть существующего свадебного комплекса.
План первого этажа
Для объединения старой и новой частей в единый организм архитекторы использовали специально спроектированный связующий элемент (самостоятельный объем) — новую структуру, которая тактично соединила старые фрагменты между собой. Крыша, ключевой элемент, который своей формой создает метафору «облака» (так и переводится название проекта). Она парит над основным пространством.


Такой архитектурный прием служит метафорой диалога между эпохами и стилями, показывая, что новое не должно уничтожать старое, а может с ним гармонично сосуществовать.


Фотографии Триу Кьена
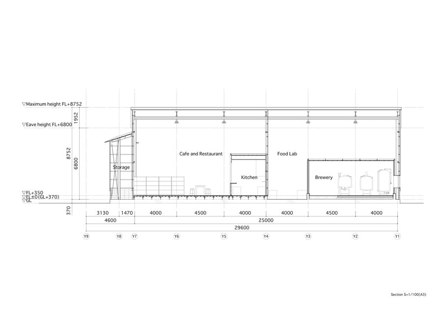
Teshima Factory Cafe
Ieura Port, остров Тешима, Япония
Фотография Кента Хасэгава
Проект «Teshima Factory Cafe» от японского бюро Schemata Architects под руководством Джо Нагасаки — это пример успешной ревитализации промышленного здания, где архитектурное решение стало инструментом экологического и социального возрождения целого острова (в прошлом остров был печально известен как «мусорный остров» из-за незаконного захоронения промышленных отходов).
Общий план
Ключевой идеей проекта стало преобразование бывшего металлообрабатывающего завода на острове Тешима в многофункциональный комплекс, объединяющий кафе и мини-пивоварню.
Так, Исходное открытое пространство завода площадью 360 м² было разделено на две равные функциональные зоны: в одной расположилась пивоварня, в другой — кафе.
Фотография Кента Хасэгава
Вертикальная проекция
Наиболее выразительным архитектурным жестом стала замена половины оригинальных металлических стен на панели из поликарбоната. За счет этого сильно повысилась светопроницаемость, которая наполняет интерьер мягким естественным светом и делает его открытым и приветливым для посетителей.
Кроме того, архитекторы решили сохранить существующий стальной каркас здания и визуально акцентировать его, покрасив в пастельно зеленый (мятный) цвет, который и создал тон для всей цветовой палитры интерьера.


Фотографии Кента Хасэгава

Особое внимание стоит уделить предметам интерьера и декора: сферические светильники, подвешенные к потолку, изготовлены из переработанного морского пластика, собранного в окрестностях острова. Стулья были созданы в рамках воркшопов голландским художником Сандром Вассинком совместно с жителями Тесимы из местной древесины.


Фотографии Кента Хасэгава
ВЫВОДЫ и ТЗ
ВЫВОДЫ:
На основе проведённого предпроектного анализа я выяснила, что хлебозавод № 8 расположен в идеальной позиции для создания Центра хлебопекарного наследия народов России, благодаря этим факторам:
1. Уникальное архитектурно-историческое наследие:
- Памятник конструктивизма 1933 года, спроектированный инженером Марсаковым, воплощающий инновационную кольцевую конвейерную технологию без аналогов в мировой практике.
- Цилиндрическая архитектура как функциональная, а не декоративная форма, которая имеет ярко выраженную центральную часть, на которой в дальнейшем можно сделать акцент.
- Символическая связь между технологией производства, геометрией здания и архетипом хлеба как универсального символа единства народов и их культур.
2. Удобная географическая доступность:
- Расположение в радиусе 9–15 минут ходьбы от крупнейшего в Москве ТПУ «Черкизово» (метро + МЦК + Восточный вокзал).
- Суммарный ежедневный пассажиропоток в десятки тысяч человек, включая межрегиональных туристов.
- Окружение развитой гостиничной инфраструктурой, что обеспечивает готовый туристический спрос.
3. Критическая демографическая масса:
- 180 тыс. жителей в соседних районах Преображенское и Соколиная гора, что гарантирует устойчивую базу местной аудитории.
- Функциональное окружение с дефицитом общественных пространств, что создаёт социальный запрос на культурно-досуговый кластер.
4. Общественное мнение:
- Местное сообщество активно сопротивляется сносу и выдвигает запрос на адаптивное повторное использование под общественные нужды.
- Позиция муниципальной власти — это признание исторической ценности и готовность поддерживать инновационные проекты реконверсии.
- Отторжение типовой жилой застройки в пользу создания уникального объекта района, сохраняющего свою культурно-архитектурную ценность.
ТЕХНИЧЕСКОЕ ЗАДАНИЕ НА ПРОЕКТИРОВАНИЕ:
Преобразование здания бывшего хлебозавода № 8, в культурно-образовательный кластер хлебопечения народов России, с целью сохранения его промышленной функции, но приспособление ее под актуальные требования.
Предполагаемые функции:
- Производственная (зоны отдельных пекарен народов России, занимающихся производством хлеба по традиционным технологиям)
- Культурно-образовательная (музей, образовательные программы, выставки, посвящённые истории инженера, технологии и хлебопекарным традициям)
- Гастрономическая (зоны демонстрации и дегустации хлеба, изготовленного по уникальным технологиям народов России)
- Рекреационная (доступные зоны для отдыха, досуга и встреч)
ИСТОЧНИКИ
1. [Электронный ресурс]: [сайт]. — URL: https://www.suncalc.org/#/55.7943,37.7417,17/01.11.2025/12:18/1/3 (дата обращения: 25.11.2025). 2. [Электронный ресурс]: [сайт]. — URL: https://smotrim.ru/article/3858739 (дата обращения: 25.11.2025). 3. [Электронный ресурс]: [сайт]. — URL: https://ru.ruwiki.ru/wiki/Локомотив_%28станция_МЦК%29 (дата обращения: 25.11.2025). 4. [Электронный ресурс]: [сайт]. — URL: https://habr.com/ru/articles/775926/?amp=&= (дата обращения: 25.11.2025). 5. [Электронный ресурс]: [сайт]. — URL: https://regnum.ru/news/3722017 (дата обращения: 25.11.2025). 6. [Электронный ресурс]: [сайт]. — URL: https://moskvichmag.ru/gorod/hlebozavody-marsakova-kak-koltsevoj/ (дата обращения: 25.11.2025). 7. [Электронный ресурс]: [сайт]. — URL: https://habr.com/ru/articles/775926/ (дата обращения: 25.11.2025). 8. [Электронный ресурс]: [сайт]. — URL: https://dzen.ru/a/YJ5HHKnKxjFR1bqI (дата обращения: 25.11.2025). 9. [Электронный ресурс]: [сайт]. — URL: https://tatlin.ru/articles/zabytyj_inzhener (дата обращения: 25.11.2025). 10. [Электронный ресурс]: [сайт]. — URL: https://ru.wikipedia.org/wiki/Москворечье_%28хлебозавод%29 (дата обращения: 25.11.2025). 11. [Электронный ресурс]: [сайт]. — URL: https://ru.wikipedia.org/wiki/Звёздный_%28комбинат%29 (дата обращения: 25.11.2025). 12. [Электронный ресурс]: [сайт]. — URL: https://ru.wikipedia.org/wiki/Хлебозавод_имени_Зотова (дата обращения: 25.11.2025). 13. [Электронный ресурс]: [сайт]. — URL: https://ru.wikipedia.org/wiki/Хлебозавод_№_9 (дата обращения: 25.11.2025). 14. [Электронный ресурс]: [сайт]. — URL: https://fishki.net/3448947-hlebozavody-marsakova-v-moskve-i-sankt-peterburge.html (дата обращения: 25.11.2025). 15. Dolinsky V.A. The universal symbol and the word association field // Вестник Московского государственного лингвистического университета. Гуманитарные науки. 2014. № 19 (705). URL: https://cyberleninka.ru/article/n/the-universal-symbol-and-the-word-association-field (дата обращения: 25.11.2025). 16. Забровский Андрей Петрович Хлеб как культурный феномен // Еда и культура. 2015. №. URL: https://cyberleninka.ru/article/n/hleb-kak-kulturnyy-fenomen (дата обращения: 25.11.2025). 17. Гальперн К. Л. Идеи и дела инженера Марсакова / Карл Гальперн. — [Москва]: Мол. гвардия, 1933. — Обл., 140, [3] с. ил.; 22×15 см. 18. [Электронный ресурс]: [сайт]. — URL: https://www.archdaily.
19. [Электронный ресурс]: [сайт]. — URL: https://www.dezeen.com/2023/10/08/rootstudio-transforms-former-convent-into-centro-gastronomico-de-oaxaca/ (дата обращения: 25.11.2025). 20. [Электронный ресурс]: [сайт]. — URL: https://archello.com/project/pong-popculture-und-gastronomy (дата обращения: 25.11.2025). 21. [Электронный ресурс]: [сайт]. — URL: https://www.sadovskyarchitects.sk/work/bakerychn-wcpk5 (дата обращения: 25.11.2025). 22. [Электронный ресурс]: [сайт]. — URL: https://www.archdaily.com/989648/may-cafe-and-bakery-fea (дата обращения: 25.11.2025). 23. [Электронный ресурс]: [сайт]. — URL: https://www.dezeen.com/2025/09/30/schemata-architects-ironworks-cafe-teshima-factory/?li_source=LI&li_medium=bottom_block_1 (дата обращения: 25.11.2025).